Vuokrataan toimistotilat, näyttelytilat, varastotilat - Helsinki
Mekaanikonkatu 21, Länsi-Herttoniemi, 00880 Helsinki #9971590
Vuokrataan toimisto-/näyttely-/varastotilaksi soveltuva toimitila Herttoniemen Mekaanikontalosta. Hyvä ilmanvaihto, tavarahissiyhteys, vapaa korkeus n. 3 metriä. Autopaikkoja omalla pihalla sekä kadun varrella. Ota yhteyttä ja sovi esittely, vuokrauspalvelumme on tilanhakijoille maksuton.
Osoite
Mekaanikonkatu 21, 00880 Helsinki
Tilatyyppi
Toimistotilaa
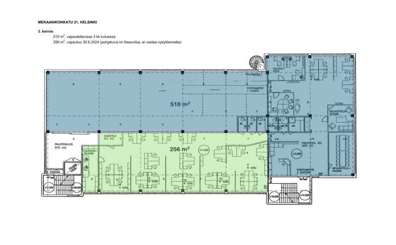
230 m2
Näyttelytilaa
280 m2
Varastotilaa
280 m2
Yhteensä
230 - 510 m2
Pohjapiirros
Kiinteistö
Toimisto- ja varastokiinteistö Mekaanikontalo.
Kulkuyhteydet
Hyvät julkiset liikenneyhteydet linja-autolla ja metrolla.
Vapautuu
Heti
Kerros
3 / 3
Energiatehokkuusluokka
Ei lain edellyttämää energiatodistusta
Lastauslaituri
Ota yhteyttä
Senaatin Notariaatti Oy LKV
Lämmittäjänkatu 4 A
FIN-00880 Helsinki
Tel:
Näytä puhelinnumero
+358 9 7745 100
Pyydä lisätietoa
