Vuokrataan varastotilat - Forssa
Finlaysonalue Logistiikkakeskus 11100 m2, Renorintie 5, 30100 Forssa #9872251
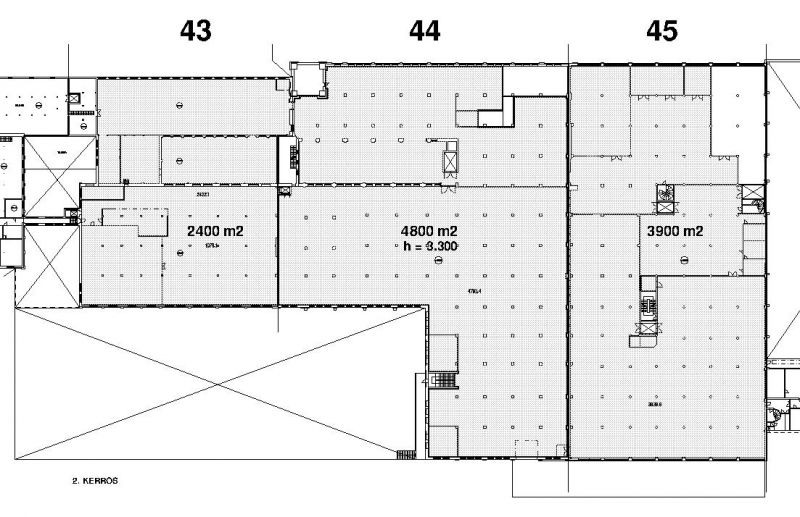
Tuotanto- ja varastotila 11100 m2 rakennuksen 2. kerroksessa, useassa eri lohkossa. Tilat lastauslaiturin ja rampin perässä. Tilojen korkeus n. 3,3 m, kantavuus 750 kg/m2. Tilat vuokrataan pääosin kylmävuokralla, jolloin käyttäjä maksaa lämmityksen ja ylläpitokulut toteutuneen mukaisesti. Kiinteistön lämmitysmuoto on kaukolämpö.
Osoite
Renorintie 5, 30100 Forssa
Tilatyyppi
Varastotilaa
11100 m2
Pohjapiirros
Sijainti
Kiinteistöltä on hyvät liikenneyhteydet valtaväylille, onhan kiinteistöissä toiminut aikoinaan yksi Pohjoismaiden suurimmista tekstiiliteollisuusalan yrityksistä. Kiinteistön reilunkokoinen tontti soveltuu hyvin rekkaliikenteelle ja se on kokonaan aidattu ja vartioitu.
Palvelut
Alueella hyvät palvelut: tavaratalot, erikoiskaupan myymälät, ravintolat.
Muuta
Renorilla on vuokrattavana Forssassa eri kokoisia tuotanto- ja varastotiloja, joiden yhteenlaskettu pinta-ala on noin 20 000 neliömetriä. Kohteet sijaitsevat Finlaysonalueella, osoitteessa Renorintie 5, Forssa.
Renor toteuttaa kasvollisesti ja kestävästi asiakaslähtöisiä toimitilaratkaisuja uuden elinkaaren ansaitsevissa historiallisissa kaupunkikiinteistöissä.
Renor toteuttaa kasvollisesti ja kestävästi asiakaslähtöisiä toimitilaratkaisuja uuden elinkaaren ansaitsevissa historiallisissa kaupunkikiinteistöissä.
Vapautuu
Heti
Ota yhteyttä
Renor Oy
Renor Oy
Puuvillakatu 4
30100 Forssa
Juha Avellan
kiinteistöpäällikkö
puhelin
Näytä puhelinnumero
040 579 6288
Pyydä lisätietoa
