Vuokrataan tuotantotilat - Askola
Teollisuustie 2, 07230 Askola #10865084
Monipuolista tuotanto- ja varastotilaa – joustavasti muunneltavissa
Osoite
Teollisuustie 2, 07230 Askola
Tilatyyppi
Tuotantotilaa
750 - 2250 m2
Tilajako
Jaettavissa
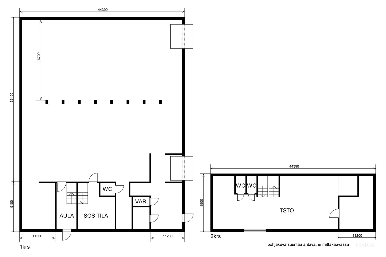
Hallitilaa noin 1500 m², vapaa korkeus n. 4,4 m
1.kerroksessa matalampaa tilaa (n. 2,9 m) sekä sosiaalitilat n. 275m2
2.kerroksessa avointa toimistotilaa n. 275m2
Vuokra
3,65€/m2
Kiinteistö
Tarjolla tilava ja monikäyttöinen tuotanto-/varastokiinteistö, joka on aiemmin toiminut kalustetehtaana. Tilat soveltuvat erinomaisesti tuotantoon, varastointiin tai muuhun yritystoimintaan, jossa tarvitaan avaraa ja toimivaa hallitilaa.
Tilat
Hallitilaa noin 1500 m², vapaa korkeus n. 4,4 m
1.kerroksessa matalampaa tilaa (n. 2,9 m) sekä sosiaalitilat n. 375m2
2.kerroksessa avointa toimistotilaa n. 375m2
Logistiikka ja kulku
2 nosto-ovea (n. 4,3 x 4,2 m) toinen lastauslaiturilla, toinen maantasossa
sujuvat lastaus- ja kuljetusmahdollisuudet
Kustannustehokas käyttö
Lämmitys toteutettu energiatehokkailla Vewi-ilmalämpöpumpuilla, öljylämmitys tukena kylmimpiin jaksoihin.
Joustavat mahdollisuudet
tila jaettavissa useammalle käyttäjälle
vapautuu sopimuksen mukaan
pääomavuokra, vuokralainen vastaa käyttökuluista (sähkö, lämmitys, vesi, ylläpito)
Tilat
Hallitilaa noin 1500 m², vapaa korkeus n. 4,4 m
1.kerroksessa matalampaa tilaa (n. 2,9 m) sekä sosiaalitilat n. 375m2
2.kerroksessa avointa toimistotilaa n. 375m2
Logistiikka ja kulku
2 nosto-ovea (n. 4,3 x 4,2 m) toinen lastauslaiturilla, toinen maantasossa
sujuvat lastaus- ja kuljetusmahdollisuudet
Kustannustehokas käyttö
Lämmitys toteutettu energiatehokkailla Vewi-ilmalämpöpumpuilla, öljylämmitys tukena kylmimpiin jaksoihin.
Joustavat mahdollisuudet
tila jaettavissa useammalle käyttäjälle
vapautuu sopimuksen mukaan
pääomavuokra, vuokralainen vastaa käyttökuluista (sähkö, lämmitys, vesi, ylläpito)
Vapautuu
Heti
Jaettavissa
Ota yhteyttä
Pyydä lisätietoa
