Vuokrataan liiketilat - Lohja
Vappulantie 494, Ojamo, 08200 Lohja #10865075
Laadukasta liiketilaa Lohjan Tynnyrinharjulta
Osoite
Vappulantie 494, 08200 Lohja
Tilatyyppi
Liiketilaa
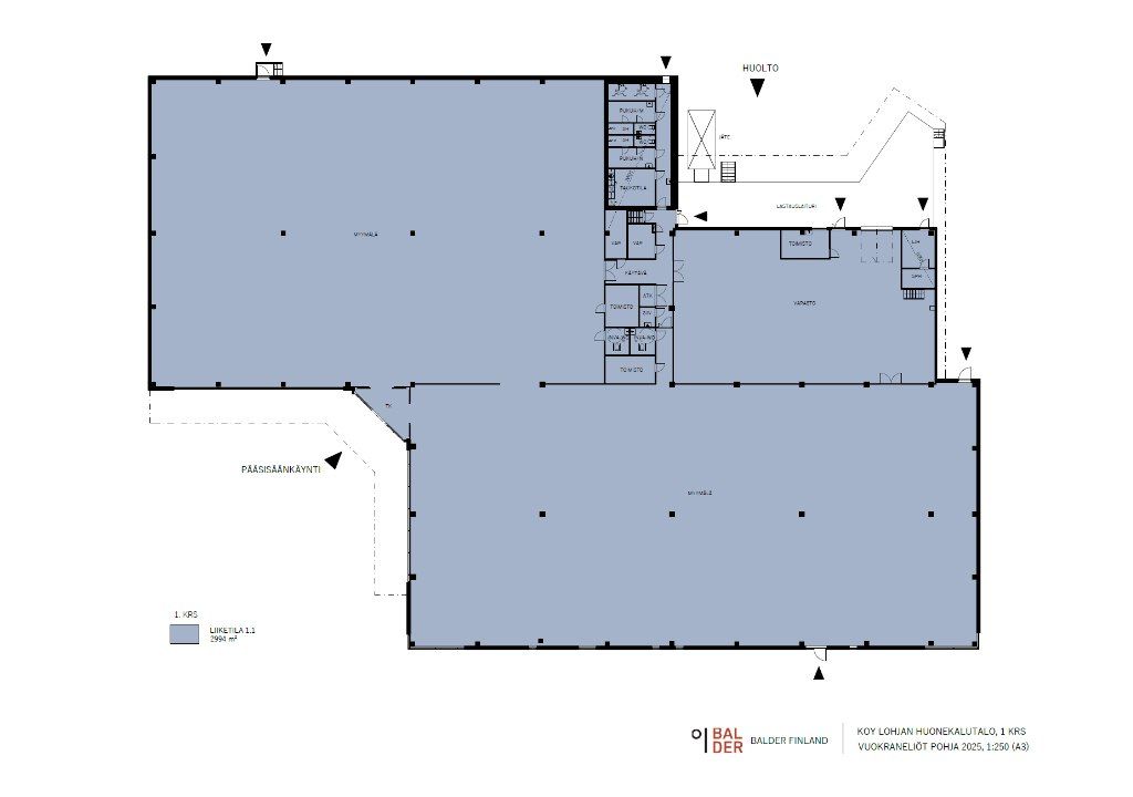
2994 m2
Pysäköinti
Pihalla
Muuta
Vuokrataan laadukasta liiketilaa huippusijainnilta Lohjan Tynnyriharjun Retail alueelta, vuokrattava tila on 1. kerroksen 2994m2 liiketila. Tämä 2994m2 liiketila on jaettavissa n.1500m2 osiin.
Kiinteistö Vappulantie 494 sijainti on erinomainen, Lohjan Tynnyriharjun Retail alueella, aivan Citymarketin välittömässä läheisyydessä, mahdollistaa suuretkin asiakasvirrat ja siten soveltuu monenlaiseen yritystoimintaan.
Kohteessa on oma lastauslaituri, josta suora yhteys varastotilan kautta myymälätilaan, helpottaa logistiikkaa ja asiakaspalvelua. Kohteessa on iso parkkialue yhteensä 103kpl autopaikkoja. Tila koostuu avaran ja selkeän liiketilan lisäksi 2kpl toimistohuoneita, taukotila, 4kpl wc-tiloja + pukuhuone ja suihkut naisille ja miehille.
Kysy tarjous tästä tilasta.
Tervetuloa tutustumaan, varaathan välittäjältä oman esittelyaikasi. Voit kysyä meiltä myös muita sopivia vaihtoehtoja, kauttamme löydät juuri teidän tarpeisiinne sopivat tilat.
Palvelumme on tilanhakijalle veloitukseton!
Kiinteistö Vappulantie 494 sijainti on erinomainen, Lohjan Tynnyriharjun Retail alueella, aivan Citymarketin välittömässä läheisyydessä, mahdollistaa suuretkin asiakasvirrat ja siten soveltuu monenlaiseen yritystoimintaan.
Kohteessa on oma lastauslaituri, josta suora yhteys varastotilan kautta myymälätilaan, helpottaa logistiikkaa ja asiakaspalvelua. Kohteessa on iso parkkialue yhteensä 103kpl autopaikkoja. Tila koostuu avaran ja selkeän liiketilan lisäksi 2kpl toimistohuoneita, taukotila, 4kpl wc-tiloja + pukuhuone ja suihkut naisille ja miehille.
Kysy tarjous tästä tilasta.
Tervetuloa tutustumaan, varaathan välittäjältä oman esittelyaikasi. Voit kysyä meiltä myös muita sopivia vaihtoehtoja, kauttamme löydät juuri teidän tarpeisiinne sopivat tilat.
Palvelumme on tilanhakijalle veloitukseton!
Vapautuu
Kysy
Kerros
1
Ota yhteyttä
Tuloskiinteistöt Oy
Rikhardinkatu 2 B 5, 00130 Helsinki
Näytä puhelinnumero
(09) 6841 620
Jorma Ryynänen
Commercial Real Estate Advisor LKV, LVV
Näytä puhelinnumero
+358 40 708 4064
Otto Ahtola
Commercial Real Estate Advisor
Näytä puhelinnumero
+358 40 042 2830
Pyydä lisätietoa
