Vuokrataan toimistotilat - Helsinki
Valimotie 1, Pitäjänmäki, 00390 Helsinki #10865068
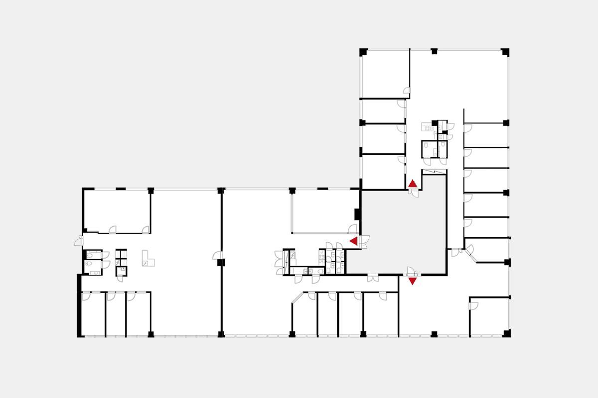
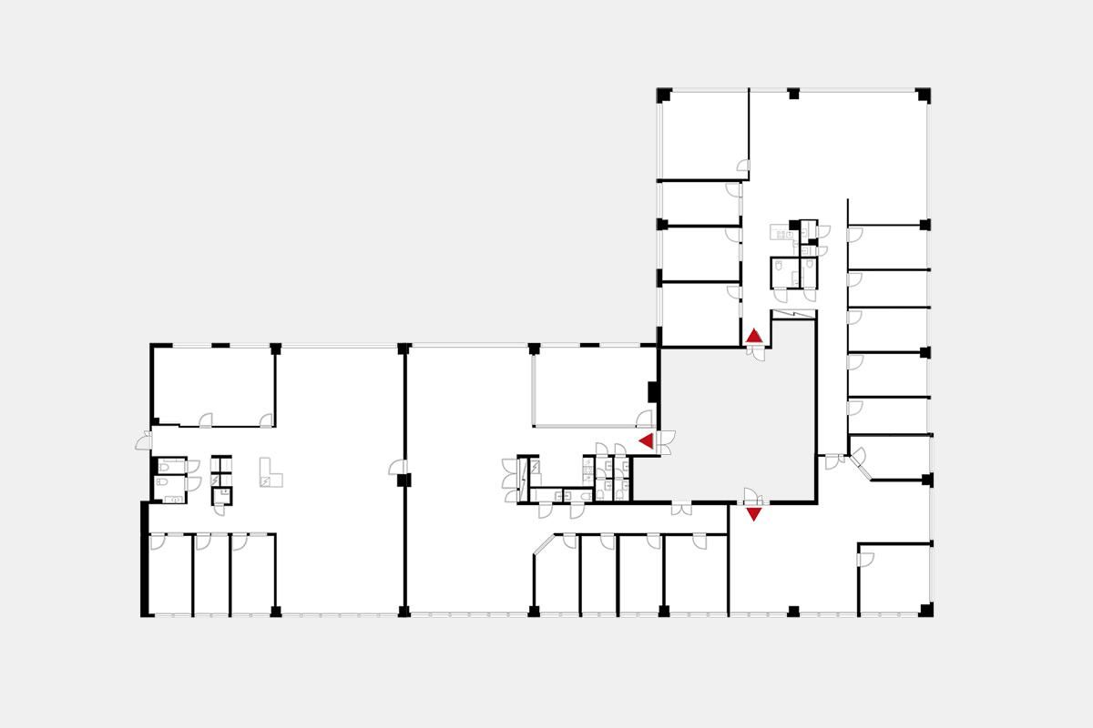
Valimo 1 - Toimisto 1090,5 m² (jaettavissa 273/817 m²)
Osoite
Valimotie 1, 00390 Helsinki
Tilatyyppi
Toimistotilaa
273 - 1091 m2
Pohjapiirros
Kiinteistö
Vuokrattavana 2. kerroksen edustava ja muuntojoustava 1 090,5 m² toimistokokonaisuus. Tila on jaettavissa esimerkiksi 273 ja 817 neliön osiin, mikä mahdollistaa toimivan ratkaisun 2–3:lle eri käyttäjälle. Toimistotila on saneerattavissa vuokralaisen tarpeiden mukaiseksi. Muutostyöt suunnitellaan yhdessä vuokralaisen kanssa, ja tilasta on saatavilla esimerkkiratkaisuja, jotka havainnollistavat saneeratun toimistoympäristön ilmettä. Ohessa esimerkkikuvia kiinteistöön toteutetuista tiloista.
Valimo 1
Valimo 1 tarjoaa modernisoituja, tehokkaita ja muuntojoustavia toimistotiloja Helsingin Pitäjänmäessä, yhdellä pääkaupunkiseudun merkittävimmistä yritysalueista. Kiinteistö ei ole uudisrakennus, vaan olemassa oleva toimistokiinteistö, jota on kehitetty pitkäjänteisesti vastaamaan nykyaikaisen työelämän vaatimuksia. Laaja modernisointi on toteutettu kokonaisuutta kunnioittaen: julkisivu on uudistettu vuonna 2011 ja sisäänkäynnit, aulat sekä opasteet on päivitetty 2010‑luvulla. Lopputuloksena on toimiva ja edustava työympäristö, jossa arki sujuu.
Valimo 1:ssä on läpi talon ulottuvia toimistotiloja, jotka soveltuvat niin keskittymistä vaativaan yksilötyöhön kuin tiimityöhön ja kohtaamisiin. Käytännölliset pohjaratkaisut ja muuntojoustavuus mahdollistavat tilojen räätälöinnin käyttäjän tarpeiden mukaan. Kiinteistössä toimii yrityksiä muun muassa IT‑, teollisuus‑, rakennus‑ sekä hyvinvointi‑ ja terveysaloilta, mikä luo alueelle monipuolisen ja ammattimaisen toimintaympäristön. Toimistokerrokset 2–7 ovat jaettavissa noin 250–1200 m² kokonaisuuksiin. Tilat voidaan toteuttaa avotilana, huonetoimistona tai hybridimallina, ja vuokralaisella on mahdollisuus vaikuttaa tilajakoon sekä pintamateriaaleihin.
Sijainti
Valimo 1 sijaitsee Pitäjänmäen yritysalueella Valimotiellä, jonne on poikkeuksellisen helppo saapua eri puolilta pääkaupunkiseutua. Raide‑Jokerin pysäkki sijaitsee aivan kiinteistön vieressä ja useat bussilinjat kulkevat talon edestä. Valimon juna-asemalle on noin 800 metrin kävelymatka. Helsingin keskustaan pääsee noin 15 minuutissa autolla ja Helsinki‑Vantaan lentoasemalle noin 20 minuutissa.
Palvelut
Kiinteistön sisäänkäynnin yhteydessä toimii lounasravintola Antell Valimo 1 sekä vuokrattavia neuvottelutiloja. Pysäköinti on vaivatonta: käytössä on yhteensä 160 autopaikkaa, joista 140 sijaitsee lämpimässä autohallissa. Vierailijat voivat pysäköidä maksutta kiinteistön edustalle.
Kellarikerroksessa on sosiaalitilat, turvalliset polkupyörien säilytystilat sekä varastotilaa. Lisäksi talossa on lastauslaituri ja tavarahissi, jotka tukevat sujuvaa arkea ja logistiikkaa.
Lähialueella on runsaasti työntekijöitä palvelevia palveluita, kuten lounasravintoloita, päivittäistavarakauppoja, kuntosaleja sekä Talin ulkoilu‑ ja liikuntamahdollisuudet golfkenttineen ja lenkkipolkuineen.
Vastuullisuus
Valimo 1:llä on BREEAM In‑Use Very Good ‑sertifikaatti, joka kertoo kiinteistön täyttävän hyvät vaatimukset ympäristövastuun ja energiatehokkuuden osalta. Vastuullisuus ja pitkäjänteinen kehittäminen ovat keskeinen osa kiinteistön hallinnointia ja vuokralaisten arkea.
Ota yhteyttä
Kiinnostuitko? Ota yhteyttä ja tule tutustumaan tiloihin!
Toimitilavälityspalvelumme on tilanhakijalle maksuton.
Valimo 1
Valimo 1 tarjoaa modernisoituja, tehokkaita ja muuntojoustavia toimistotiloja Helsingin Pitäjänmäessä, yhdellä pääkaupunkiseudun merkittävimmistä yritysalueista. Kiinteistö ei ole uudisrakennus, vaan olemassa oleva toimistokiinteistö, jota on kehitetty pitkäjänteisesti vastaamaan nykyaikaisen työelämän vaatimuksia. Laaja modernisointi on toteutettu kokonaisuutta kunnioittaen: julkisivu on uudistettu vuonna 2011 ja sisäänkäynnit, aulat sekä opasteet on päivitetty 2010‑luvulla. Lopputuloksena on toimiva ja edustava työympäristö, jossa arki sujuu.
Valimo 1:ssä on läpi talon ulottuvia toimistotiloja, jotka soveltuvat niin keskittymistä vaativaan yksilötyöhön kuin tiimityöhön ja kohtaamisiin. Käytännölliset pohjaratkaisut ja muuntojoustavuus mahdollistavat tilojen räätälöinnin käyttäjän tarpeiden mukaan. Kiinteistössä toimii yrityksiä muun muassa IT‑, teollisuus‑, rakennus‑ sekä hyvinvointi‑ ja terveysaloilta, mikä luo alueelle monipuolisen ja ammattimaisen toimintaympäristön. Toimistokerrokset 2–7 ovat jaettavissa noin 250–1200 m² kokonaisuuksiin. Tilat voidaan toteuttaa avotilana, huonetoimistona tai hybridimallina, ja vuokralaisella on mahdollisuus vaikuttaa tilajakoon sekä pintamateriaaleihin.
Sijainti
Valimo 1 sijaitsee Pitäjänmäen yritysalueella Valimotiellä, jonne on poikkeuksellisen helppo saapua eri puolilta pääkaupunkiseutua. Raide‑Jokerin pysäkki sijaitsee aivan kiinteistön vieressä ja useat bussilinjat kulkevat talon edestä. Valimon juna-asemalle on noin 800 metrin kävelymatka. Helsingin keskustaan pääsee noin 15 minuutissa autolla ja Helsinki‑Vantaan lentoasemalle noin 20 minuutissa.
Palvelut
Kiinteistön sisäänkäynnin yhteydessä toimii lounasravintola Antell Valimo 1 sekä vuokrattavia neuvottelutiloja. Pysäköinti on vaivatonta: käytössä on yhteensä 160 autopaikkaa, joista 140 sijaitsee lämpimässä autohallissa. Vierailijat voivat pysäköidä maksutta kiinteistön edustalle.
Kellarikerroksessa on sosiaalitilat, turvalliset polkupyörien säilytystilat sekä varastotilaa. Lisäksi talossa on lastauslaituri ja tavarahissi, jotka tukevat sujuvaa arkea ja logistiikkaa.
Lähialueella on runsaasti työntekijöitä palvelevia palveluita, kuten lounasravintoloita, päivittäistavarakauppoja, kuntosaleja sekä Talin ulkoilu‑ ja liikuntamahdollisuudet golfkenttineen ja lenkkipolkuineen.
Vastuullisuus
Valimo 1:llä on BREEAM In‑Use Very Good ‑sertifikaatti, joka kertoo kiinteistön täyttävän hyvät vaatimukset ympäristövastuun ja energiatehokkuuden osalta. Vastuullisuus ja pitkäjänteinen kehittäminen ovat keskeinen osa kiinteistön hallinnointia ja vuokralaisten arkea.
Ota yhteyttä
Kiinnostuitko? Ota yhteyttä ja tule tutustumaan tiloihin!
Toimitilavälityspalvelumme on tilanhakijalle maksuton.
Vapautuu
Kysy
Kerros
2
Ota yhteyttä
Logistila Oy
Kylätie 11-13, 00320 HELSINKI
Karoliina Turppo
Näytä puhelinnumero
050 345 3258
Pyydä lisätietoa
