Vuokrataan toimistotilat, tuotantotilat - Tampere
Ahlmannintie 56, Nekala, 33800 Tampere #10865065
Nekalassa toimitilaa
Osoite
Ahlmannintie 56, 33800 Tampere
Tilatyyppi
Toimistotilaa
100 - 300 m2
Tuotantotilaa
100 - 300 m2
Yhteensä
100 - 300 m2
Kiinteistö
Vuokrataan Nekalasta Ahlmannintieltä ns. Karjakunnan kiinteistöstä toimitilaa. Tilat sopivat toimistokäyttöön, kevyeen tuotantoon tai vaikkapa liikuntatilaksi.
Tiloja on vapaana:
noin 90 m2 siisti avotila, sopii toimistoksi tai vaikka hierojalle tms. Tilassa on vesipiste sekä erillinen pieni varastohuone. Yhteiskäytössä olevat sosiaalitilat ovat käytävällä
noin 120 m2 siisti avotila, sopii hyvin kevyeen tuotantoon. Tilassa on vesipisteitä ja lattiakaivoja. Yhteiskäytössä olevat sosiaalitilat ovat käytävällä
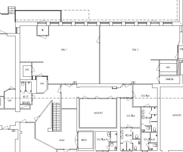
noin 300 m2 tila, joka koostuu kolmesta isosta avotilasta sekä sosiaalitiloista (useita WC-tiloja sekä suihkut). Myös avokeittiö.
Tilat sijaitsevat toisessa kerroksessa. Kulku Mäntyhaankadun puolelta.
Kadun varressa kiekkopaikkoja.
Tiloja on vapaana:
noin 90 m2 siisti avotila, sopii toimistoksi tai vaikka hierojalle tms. Tilassa on vesipiste sekä erillinen pieni varastohuone. Yhteiskäytössä olevat sosiaalitilat ovat käytävällä
noin 120 m2 siisti avotila, sopii hyvin kevyeen tuotantoon. Tilassa on vesipisteitä ja lattiakaivoja. Yhteiskäytössä olevat sosiaalitilat ovat käytävällä
noin 300 m2 tila, joka koostuu kolmesta isosta avotilasta sekä sosiaalitiloista (useita WC-tiloja sekä suihkut). Myös avokeittiö.
Tilat sijaitsevat toisessa kerroksessa. Kulku Mäntyhaankadun puolelta.
Kadun varressa kiekkopaikkoja.
Vapautuu
Kysy
Kerros
2.
Ota yhteyttä
Logistila Oy
Kalevan puistotie 22 LT 4, 33500 Tampere
Ulla Lyytinen
Näytä puhelinnumero
040 776 0538
Pyydä lisätietoa
