Vuokrataan liiketilat - Oulu
Haaransuonkuja 5, Maikkula, 90240 Oulu #10865052
Osoite
Haaransuonkuja 5, 90240 Oulu
Tilatyyppi
Liiketilaa
240 m2
Vuokra
3120,00 €/kk
Vuokraan sisältyy vesi, lämpö
Pysäköinti
Autopaikat löytyy tilojen edestä.
Muuta
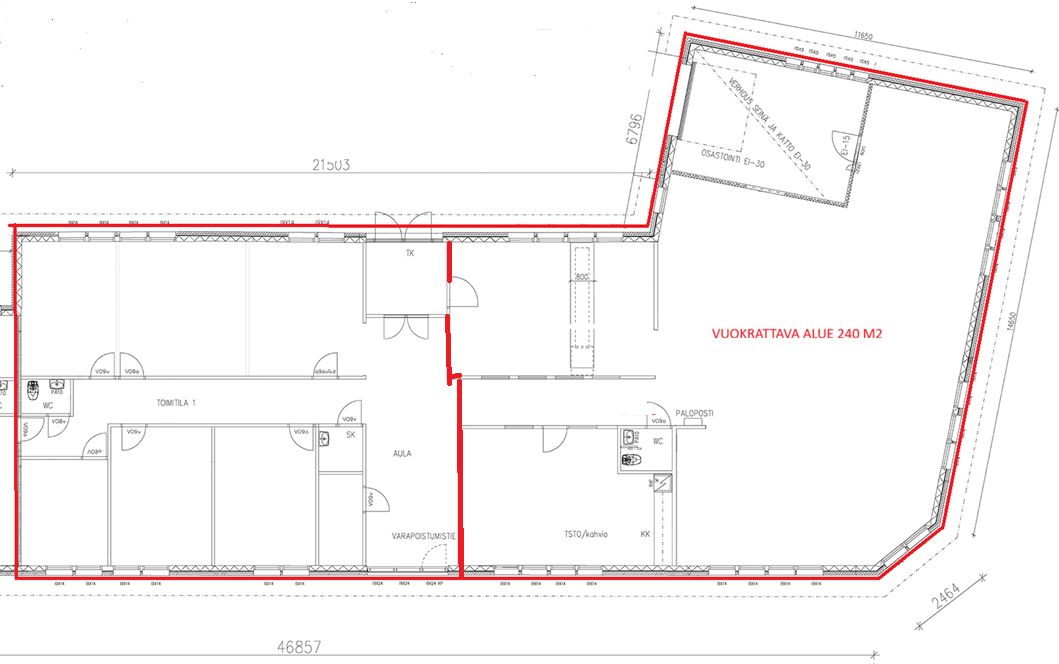
Vuokrataan monipuolinen 240 m² toimitila nosto-ovella – Toimisto ja tuotanto samassa paketissa.
Etsitkö yrityksellesi tilaa, jossa hallinto ja käytännön työ kohtaavat saumattomasti?
Vuokrattavana erinomaisella pohjaratkaisulla varustettu 240 m² toimitila, joka taipuu moneen käyttöön. Tässä kohteessa on huomioitu niin asiakasviihtyvyys kuin tehokas logistiikkakin – täydellinen valinta esimerkiksi asennusliikkeelle, tukkumyynnille tai huoltopalveluille, muuntuu myös avotoimistoksi tarpeen mukaan.
Tilan ominaisuudet:
Vastaanottotila: Heti sisääntulossa on tilava, laattalattialla varustettu asiakasvastaanotto. Tästä tilasta on suora kulku tuotantotiloihin, mikä helpottaa päivittäistä asiointia.
Monipuoliset työpisteet:
Kokonaisuuteen kuuluu yksi rauhallinen erillinen
toimistohuone sekä suuri ja valoisa avokonttori/työtila, joka mahdollistaa joustavat tiimityöskentelyratkaisut eri tarpeisiin.
Logistiikka ja säilytys:
Rakennuksen päädyssä on 2,5 m korkealla nosto-ovella varustettu autotalli/varasto josta yhteys muihin tiloihin joustavasti.
Viihtyisät sosiaalitilat:
Erittäin tilava keittiö runsaalla kaappitilalla takaa henkilöstön viihtyvyyden. Lisäksi tilassa on oma WC.
Lisätiedot 045 2566 059 tai jarmo.kehusmaa@kiinteistotahkola.fi.
Eikö tämä ole sopiva? Kysy muita vaihtoehtojamme!
Etsitkö yrityksellesi tilaa, jossa hallinto ja käytännön työ kohtaavat saumattomasti?
Vuokrattavana erinomaisella pohjaratkaisulla varustettu 240 m² toimitila, joka taipuu moneen käyttöön. Tässä kohteessa on huomioitu niin asiakasviihtyvyys kuin tehokas logistiikkakin – täydellinen valinta esimerkiksi asennusliikkeelle, tukkumyynnille tai huoltopalveluille, muuntuu myös avotoimistoksi tarpeen mukaan.
Tilan ominaisuudet:
Vastaanottotila: Heti sisääntulossa on tilava, laattalattialla varustettu asiakasvastaanotto. Tästä tilasta on suora kulku tuotantotiloihin, mikä helpottaa päivittäistä asiointia.
Monipuoliset työpisteet:
Kokonaisuuteen kuuluu yksi rauhallinen erillinen
toimistohuone sekä suuri ja valoisa avokonttori/työtila, joka mahdollistaa joustavat tiimityöskentelyratkaisut eri tarpeisiin.
Logistiikka ja säilytys:
Rakennuksen päädyssä on 2,5 m korkealla nosto-ovella varustettu autotalli/varasto josta yhteys muihin tiloihin joustavasti.
Viihtyisät sosiaalitilat:
Erittäin tilava keittiö runsaalla kaappitilalla takaa henkilöstön viihtyvyyden. Lisäksi tilassa on oma WC.
Lisätiedot 045 2566 059 tai jarmo.kehusmaa@kiinteistotahkola.fi.
Eikö tämä ole sopiva? Kysy muita vaihtoehtojamme!
Vapautuu
Heti vapaa
Rakennusvuosi
2004
Kerros
1
Ota yhteyttä
Kiinteistö-Tahkola Oy
Lumijoentie 1, 90400 Oulu
Näytä puhelinnumero
0207 480 250
Jarmo Kehusmaa
Näytä puhelinnumero
0452566059
Pyydä lisätietoa
