Vuokrataan työtilat - Nokia
Kivimiehenkatu 6, Pitkäniemi, 37100 Nokia #10865040
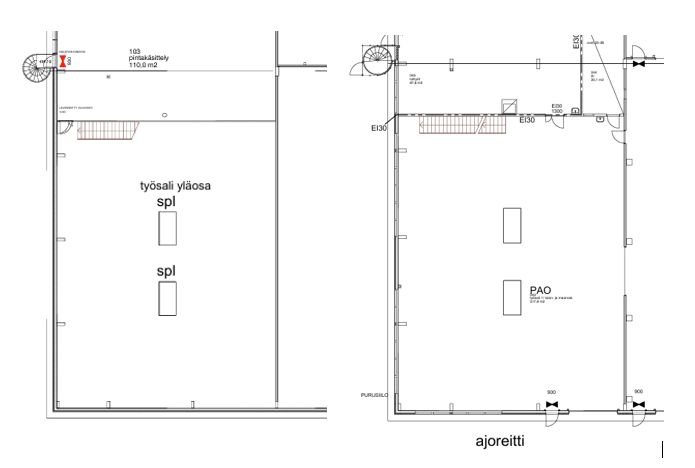
Nyt vuokrattavissa hallitilaa kahdessa kerroksessa. Kokonaispinta-ala on 318m2, josta 110m2 sijaitsee toisessa kerroksessa. Lisäksi tilaan on nosto-ovi sekä käyntiovi.
Kivimiehenkatu 6 sijaitsee Nokian yritysalueella, hyvien kulkuyhteyksien varrella lähellä valtaväyliä. Sijainti mahdollistaa sujuvan liikkumisen niin Tampereen suuntaan kuin muualle Pirkanmaan alueelle. Alue on rauhallinen ja toimiva yritysympäristö, jossa arjen logistiikka toimii tehokkaasti.
Kiinteistö tarjoaa käytännölliset tilat kevyempään tuotanto- tai varastokäyttöön, ja niitä voidaan tarvittaessa räätälöidä vuokralaisen tarpeiden mukaan. Lisäksi kiinteistön pihalta löytyy paljon pysäköintipaikkoja ja kiinteistöstä löytyy erilliset sosiaalitilat niin naisille kuin miehille.
Me Croisettella autamme teitä löytämään teille parhaat tilat! Olemme puolueettomia asiantuntijoita ja tunnemme toimitilamarkkinat, talot sekä tilat vankalla kokemuksella. Meillä on välityksessä kaikki toimitilat ja tiedämme niiden alustavat vuokratasot.
Tehtävämme on tehdä toimitilahaustanne onnistunutta ja helppoa. Saamme palkkiomme kiinteistönomistajalta, joten sinulle palvelumme on täysin maksuton. Jos kiinnostuit, ota yhteyttä!
Croisette Real Estate Partner
Erottajankatu 5 A 6, 00130 Helsinki
Näytä puhelinnumero
+358 400 585 857
Croisette Vuokraus
Näytä puhelinnumero
+358400585857
