Vuokrataan tuotantotilat - Pirkkala
Jasperintie 334, Linnakorpi, 33960 Pirkkala #10865011
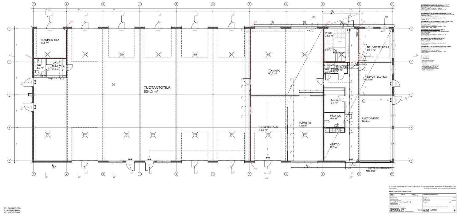
Etsitkö kasvua tukevaa toimitilaa erinomaisella sijainnilla? Keväällä 2026 vapautumassa vuokrattavaksi monikäyttöinen, selkeä ja korkea hallitila.
Toimitila sisältää myös modernia toimistoa.
Tilassa on tällä hetkellä käytössä kolme nosto-ovea, mutta niiden määrä on tarvittaessa räätälöitävissä asiakkaan tarpeiden mukaan. Erilliset käyntiovet tuovat sujuvuutta kulkemiseen.
Maantasolastaus mahdollistaa helpon ja tehokkaan logistiikan.
Toimistotilat sijaitsevat sekä hallin puolella, että kohteen toisessa kerroksessa.
Toimitilassa on hyvät WC- ja sosiaalitilat.
Kohteella on hyvin parkkipaikkoja saatavilla.
Vuokraan lisätään alv + kulut.
Ota yhteyttä ja kysy lisää!
Masa Hakala
masa.hakala@blanckiinteisto.com
+358 40 964 2482
www.blanctoimitilat.fi
