Myydään liiketilat - Hyvinkää
Rääkänkatu 1, Tehdas, 05810 Hyvinkää #10864999
Vuokrattu liikekiinteistö Hyvinkäällä, jossa pitkä sopimus julkisvuokralaisen kanssa !
Kohde sijaitsee keskeisellä yritysalueen keskittymässä Sillankorvantien varrella, joka on yksi Hyvinkään vilkkaimpia sisääntuloteitä.
Sijainti Hyvinkään keskustasta (n. 2 km) ja rautatieasemasta (n. 2,5 km).
Alueelle on sujuvat yhteydet niin valtatie 3:n kuin pääkaupunkiseudunkin suuntaan.
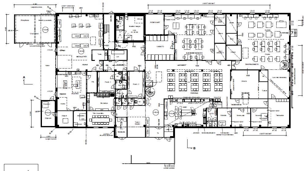
Oma tontti 3 122 m².
Kiinteistöllä ei ole kiinnityksiä.
Vuonna 2010 valmistunut rakennus on laajennettu vuonna 2016.
Rakennusluokkana on lämpimät varastot.
Vuokrattu huoneistoala n. 1550 m² ja kokonaiskerrosala 1 625 m².
Tilavuus on 8 830 m³.
Alkuperäinen osa on betonipalkkirunkoinen ja laajennusosa teräspalkkirunkoinen. Ulkoseinät ovat peltiverhottuja elementtejä.
Rakennuksessa on koneellinen ilmanvaihto ja viilennys etähallinnalla.
Kaukolämpö sekä valokuituyhteys.
Kiinteistö on kokonaisuudessaan vuokrattu, ja vuokrasopimus on määräaikainen 30.4.2031, jatkuen tämän jälkeen toistaiseksi voimassa olevana, ellei irtisanomisesta ilmoiteta 12 kuukautta ennen määräajan päättymistä.
Nykyinen vuokra on 25 654 €/kk + alv.
Lisätuloa muodostuu katolle sijoitetuista tukiasemista:
Telia 1 839,83 €/vuosi
DNA 2 177,58 €/vuosi
Kiinteistön ylläpitokulut tilikaudelta 2024 ovat olleet yhteensä 23 348 € (alv 0 %).
Kokonaisuutena kohde soveltuu sijoittajalle, joka arvostaa pitkäaikaista vuokratuottoa, julkista vuokralaista ja teknisesti modernia, hyvin ylläpidettyä varasto- ja tuotantokiinteistöä kasvukäytävällä Helsingin ja Hämeenlinnan välillä.
Alueelle saa rakentaa liike- ja toimistorakennuksia sekä ympäristöhäiriötä aiheuttamattomia teollisuus- ja varastorakennuksia. Alueelle ei saa sijoittaa elintarvikkeiden vähittäismyyntiä. Aluetta ei saa käyttää ulkovarastointiin.
Kiinteistötunnus: 106-5-444-17
Tontin pinta-ala 3122 m².
Ei kiinnityksiä.
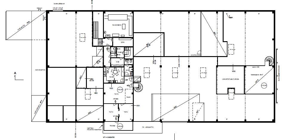
Rakennus:
Valmistumisvuosi: 2010, laajennus 2015.
Rakennusluokka: Lämpimät varastot
Kerrosala / kokonaisala: 1 625 m²
Tilavuus: 8 830 m³
Alkuperäinen osa betonipalkki runko, laajennusosa teräspalkki.
Ulkoseinissä peltiverhottu elementti.
Koneellinen ilmanvaihto ja viilennys, etähallinta.
Kaukolämpö.
Valokuitu.
Rakennus on vuokrattu määräaikaisesti 30.4.2031 asti. Sopimus jatkuu toistaiseksi voimassaolevana, ellei sen päättymisestä ilmoiteta 12 kk ennen määräajan päättymistä. Irtisanomisaika tämän jälkeen 12 kk.
Tilat on vuokrattu Hyvinkään kaupungille työkeskus käyttöön.
Vuokra 25.654 €/kk + alv.
Tukiasema vuokrat:
Telia 1839,83 €/vuosi
Dna 2177,58 €/vuosi.
Ylläpitokultu tilikauden 2024 osalta 23.348 € alv. 0
Muut tilat:
Vuokrattava huoneistoala n. 1550 m².
Rakennuksen kokonaisala / kerrosala 1625 m² Rakennus- ja huoneistorekisteriote- RAHU otteen mukaan
Jaettavissa
OP Koti Uusimaa Oy LKV
Toimitilapalvelut
Arkadiankatu 23
00100 HELSINKI
Mika Nyman
Toimitilavälittäjä, Kiinteistöarvioija, LKV, YKV, AKA/KHK
Näytä puhelinnumero
0400 347 758
