Vuokrataan toimistotilat - Espoo
Niittytaival 13, Niittykumpu, 02200 Espoo #10864997
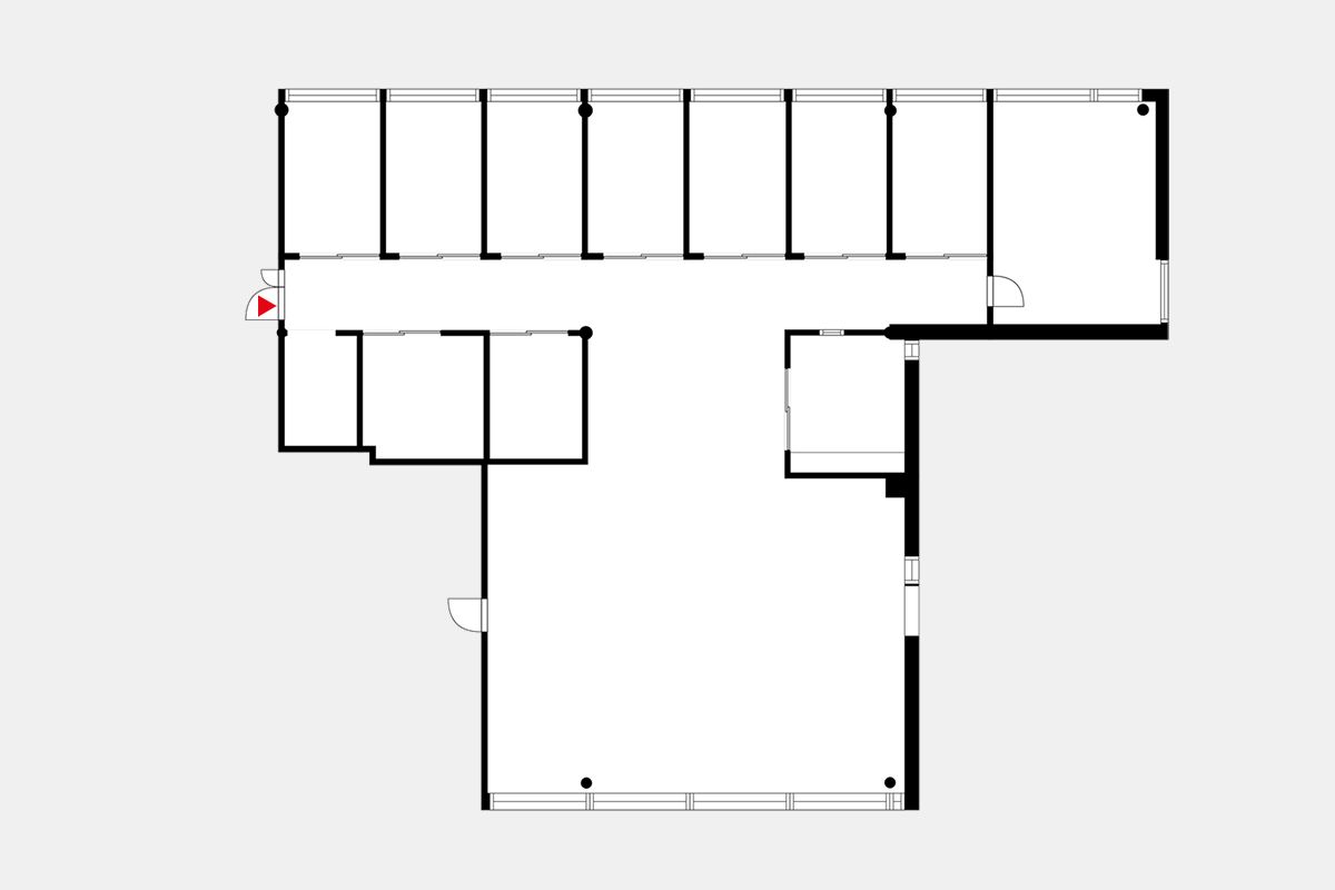
Vuokrataan valoisa toimistotila rakennuksen toisessa kerroksessa. Tila käsittää avotilan, erillisiä työhuoneita, pari erikokoista neuvotteluhuonetta sekä toimivan oman keittiö- ja taukotilan.
Kiinteistössä vuokrattavat sauna- ja kokoustilat, aulapalvelut, lounasravintola ja pihalla autopaikkoja.
Lisätietoja numerosta 020 7290 710. Lisää kohteita osoitteessa www.premises.fi.
Kohteella ei ole lain edellyttämää energiatodistusta.Kerros: 2
Osoite
Niittytaival 13, 02200 Espoo
Tilatyyppi
Toimistotilaa
305 m2
Kulkuyhteydet
Metroasema 970 m
Bussipysäkki 310 m
Juna-asema 8,5 km
Lentoasema 28 km
Bussipysäkki 310 m
Juna-asema 8,5 km
Lentoasema 28 km
Ota yhteyttä
CRE PREMISES
Puh. Näytä puhelinnumero 020 7290 710
Vantaankoskentie 14
01670 VANTAA
Pyydä lisätietoa
