Vuokrataan toimistotilat - Helsinki
Sahaajankatu 24, Herttoniemi, 00880 Helsinki #10864893
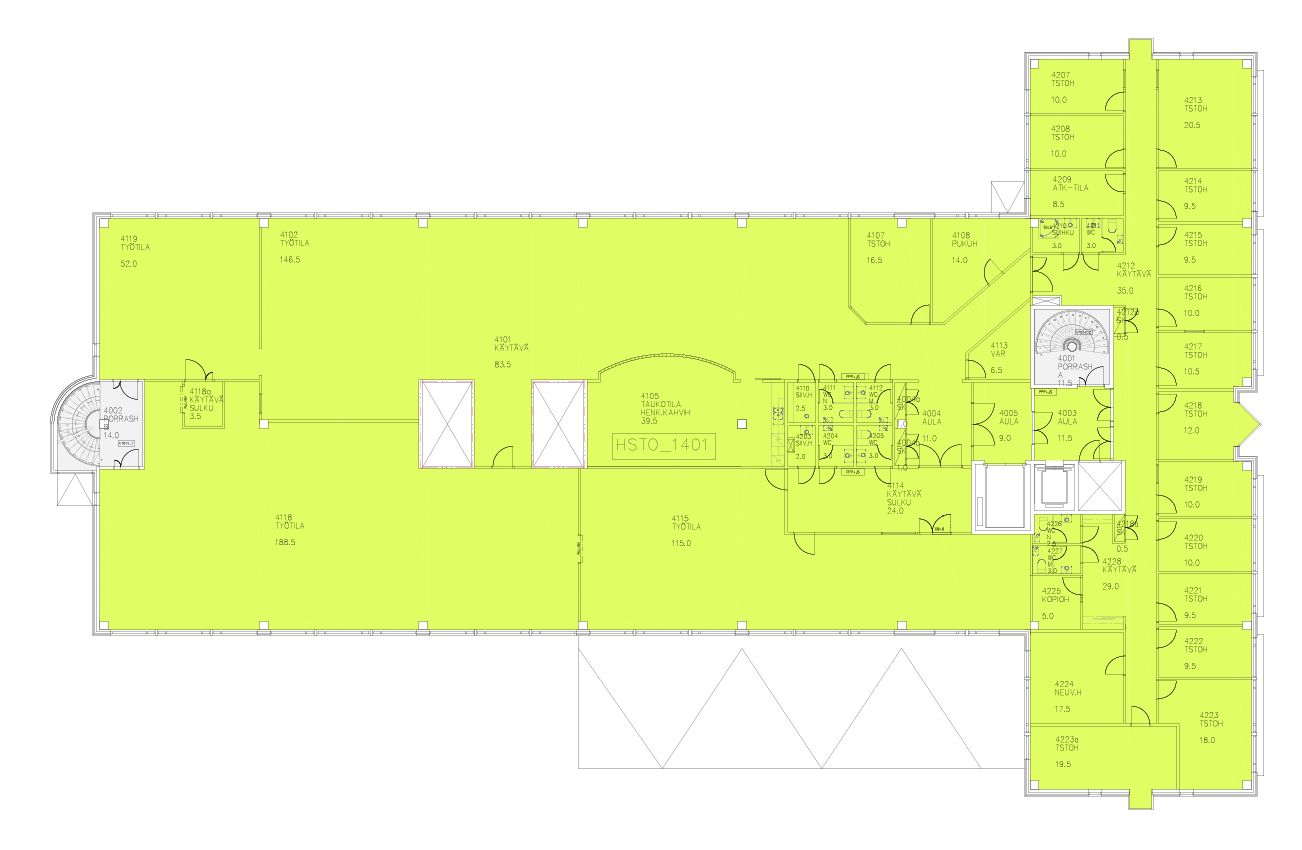
Vuokrattavana koko 4. kerroksen siistiä toimistotilaa.
Osoite
Sahaajankatu 24, 00880 Helsinki
Tilatyyppi
Toimistotilaa
1044,5 m2
Tilajako
Jaettavissa
Kiinteistö
Vuokrattavana koko 4. kerroksen siistiä toimistotilaa. Tilassa on eri kokoisia toimistohuoneita, avotila, keittiö ja useampi wc. Osaa tilasta voidaan käyttää myös tuotanto- ja varastotilana.
Sijainti
Herttoniemi, Helsinki
Pysäköinti
Kiinteistön pihalla on pysäköintipaikkoja vuokralaisten käyttöön.
Palvelut
-Lounasravintola
-Ruokakauppa
-Ruokakauppa
Kulkuyhteydet
-Metro
-Bussi
-Oma auto
-Bussi
-Oma auto
Vapautuu
Heti
Kerros
4
Energiatehokkuusluokka
Ei lain edellyttämää energiatodistusta
Näkyvällä paikalla
Jaettavissa
Hissi
Ota yhteyttä
REALIUM OY LKV
Tammasaarenkatu 1, 00180 Helsinki
Vaihde:
Näytä puhelinnumero
010 326 346
Tuomo Mäkelä
tuomo.makela@realium.fi
p.
Näytä puhelinnumero
044 050 1158
Joel Keto
joel.keto@realium.fi
p.
Näytä puhelinnumero
045 317 0330
KAIKKI TILAVAIHTOEHDOT KERRALLA!
SOITA - MEILAA JA TILAA NÄYTTÖ!
Ilmainen palvelu tilanhakijoille.
Kartoitamme parhaat tilavaihtoehdot.
Kaikki kohteet eivät ole netissä.
Pyydä lisätietoa
