Vuokrataan toimistotilat - Helsinki
Ratavartijankatu 3, Pasila, 00520 Helsinki #10864884
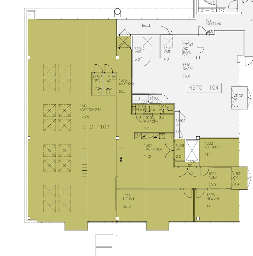
Vuokrattavana ensimmäisen kerroksen siistiä ja modernia toimistotilaa omalla sisäänkäynnillä.
Osoite
Ratavartijankatu 3, 00520 Helsinki
Tilatyyppi
Toimistotilaa
314,5 m2
Kiinteistö
Vuokrattavana ensimmäisen kerroksen siistiä ja modernia toimistotilaa omalla sisäänkäynnillä. Tilassa on avotila, kaksi neuvotteluhuonetta, avara taukotila ja sosiaalitilat.
Sijainti
Pasila, Helsinki
Pysäköinti
Kiinteistössä on oma pysäköintihalli.
Palvelut
Alueen palvelut.
Kulkuyhteydet
-Juna
-Raitiovaunu
-Bussi
-Oma auto
-Raitiovaunu
-Bussi
-Oma auto
Vapautuu
01.04.2027
Kerros
1
Energiatehokkuusluokka
Ei lain edellyttämää energiatodistusta
Näkyvällä paikalla
Hissi
Lastauslaituri
Ota yhteyttä
REALIUM OY LKV
Tammasaarenkatu 1, 00180 Helsinki
Vaihde:
Näytä puhelinnumero
010 326 346
Tuomo Mäkelä
tuomo.makela@realium.fi
p.
Näytä puhelinnumero
044 050 1158
Joel Keto
joel.keto@realium.fi
p.
Näytä puhelinnumero
045 317 0330
KAIKKI TILAVAIHTOEHDOT KERRALLA!
SOITA - MEILAA JA TILAA NÄYTTÖ!
Ilmainen palvelu tilanhakijoille.
Kartoitamme parhaat tilavaihtoehdot.
Kaikki kohteet eivät ole netissä.
Pyydä lisätietoa
