Vuokrataan tuotantotilat - Naantali
Prosessikatu 27, 21100 Naantali #10864791
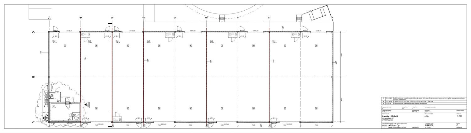
Vuokrattavana 138 m² toimitila Naantalin Luolalan teollisuusalueelta osoitteessa Prosessikatu 27, Naantali.
Rakentaminen on alkamassa tänä keväänä, ja tila valmistuu marraskuuhun 2026 mennessä.
Hallitila on pinta-alaltaan 138 m², ja sen korkeus on noin 6 metriä.
Tilassa maantasoyhteys. Sähköisen nosto-oven mitat ovat 4,5 m x 5 m (leveys x korkeus). Lisäksi tilassa on erillinen käyntiovi. Hallissa on kahdet lattiakaivoa.
Hallissa löytyvät wc-tila valmiudet.
Hallin mitat ovat syvyydeltään 20 metriä ja leveydeltään 7 metriä.
Pohjakuvassa halli numero 4.
Kysy lisätietoja!
Lisää toimitiloja: www.rhg.fi
Uudiskohde
RHG Real Estate
Hämeenkatu 2 B20, 20500 Turku
Tony Rosenblad
Toimitilavälittäjä
Näytä puhelinnumero
+358 50 551 5375
