Vuokrataan varastotilat - Naantali
Prosessikatu 27, 21100 Naantali #10864789
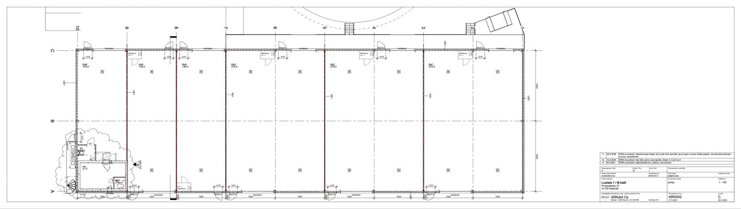
Vuokrattavana 279 m² toimitila Naantalin Luolalan teollisuusalueelta osoitteessa Prosessikatu 27, Naantali.
Rakentaminen on alkamassa tänä keväänä, ja tila valmistuu marraskuuhun 2026 mennessä.
Hallitila on pinta-alaltaan 279 m², ja sen korkeus on noin 6 metriä.
Tilassa on sekä maantaso- että lastauslaituriyhteys. Sähköisten nosto-ovien mitat ovat 4,5 m x 5 m sekä 3,5 m x 5 m (leveys x korkeus).
Lisäksi tilassa on erillisiä käyntiovia. Hallissa on neljä lattiakaivoa.
Hallissa löytyvät wc-tila valmiudet.
Hallin mitat ovat syvyydeltään 20 metriä ja leveydeltään 14 metriä.
Pohjakuvassa kyseessä on halli numero 1.
Kysy lisätietoja!
Lisää toimitiloja: www.rhg.fi
Uudiskohde
RHG Real Estate
Hämeenkatu 2 B20, 20500 Turku
Tony Rosenblad
Toimitilavälittäjä
Näytä puhelinnumero
+358 50 551 5375
