Julkisivu
Julkisivu
Julkisivu
Julkisivu
Julkisivu
Julkisivu
Myymälätila
Myymälätila
Myymälätila
Myymälätila
Myymälätila
Myymälätila
Sisäkuva
Sisäkuva
Tauko- / neuvottelutila
Tauko- / neuvottelutila
Pesutila
Pesutila
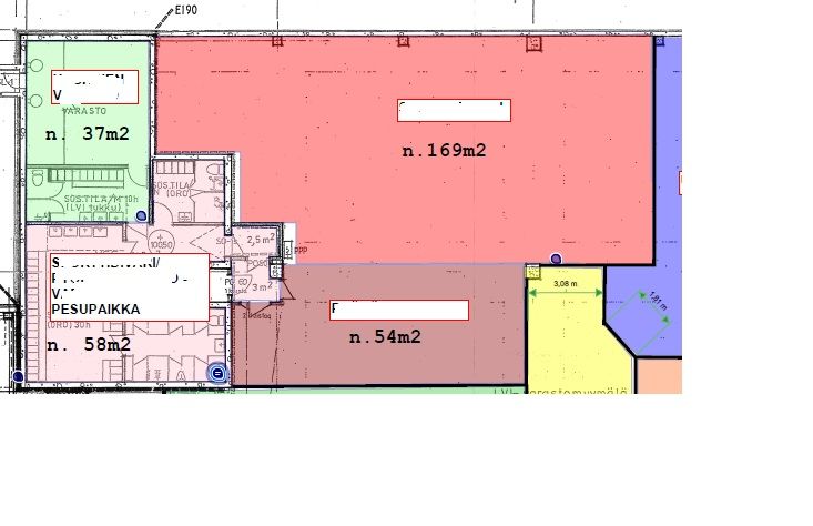
Pohjakuva
Pohjakuva

Vuokrataan liiketilat, varastotilat, muut tilat - Jyväskylä

Vuokrataan Liiketila Seppälästä!, Ahjokatu 15, 40320 Jyväskylä #10864785

Vuokrataan loistavalta paikalta Ahjokadulta n. 169 m2 liike - / varastotilaa, johon kuuluu takatiloja n 58 m2, tila yhteensä 227 m2. Tilan kokoonpanoon kuuluu selkeä myymälätila, jonka takanurkassa pieni keittiö. Väestönsuojatilassa neuvotteluhuone / taukotila, sosiaali- ja wc-tilat sekä pesutila. Tila sijaitsee kiinteistön pohjakerroksessa Miilukadun puolella.

Tila on aiemmin ollut Sporttidivarin käytössä. Samassa kiinteistössä sijaitsee mm. K-Rauta Seppälä. Seppälän alueella vilkkaat asiakasvirrat sekä hyvä näkyvyys.

Pysäköintipaikkoja kiinteistöllä saatavilla työntekijöille, ja asiakkaille myös pysäköintitilaa.

Tila vapautuu 2 - 3 kuukaudessa.

Lisätiedot ja näytöt:

Henri Kumpulainen, 040 864 3631, henri.kumpulainen@aveon.fi

Osoite
Ahjokatu 15, 40320 Jyväskylä
Tilatyyppi
Liiketilaa
169 m2
Varastotilaa
169 m2
Muuta tilaa
58 m2
Yhteensä
227 m2
Pohjapiirros
Kiinteistö
Kiinteistössä toimii mm. K-Rauta Seppälä sekä Suksipaja Oy.
Sijainti
Loistava sijainti Ahjokadulla Seppälässä.
Pysäköinti
Pysäköintipaikkoja henkilökunnalle sekä asiakkaille.
Vapautuu
Heti
Energiatehokkuusluokka
Ei lain edellyttämää energiatodistusta

Katutasossa

Näkyvällä paikalla

Ota yhteyttä

Aveon Real Estate Oy

Kauppakatu 18 C 26, 40100 Jyväskylä

Henri Kumpulainen
Puh. Näytä puhelinnumero 040 864 3631
henri.kumpulainen@aveon.fi

Olemme kiinteistöliiketoiminnan asiantuntija, joka toimii yrittäjämäisesti neuvonantajana kiinteistökaupoissa, toimitilavälittämisessä sekä kiinteistökehityksessä.

Asiakkaitamme ovat kotimaiset ja ulkomaiset kiinteistönomistajat, -sijoittajat sekä tilojen käyttäjät kaikkialla Suomessa.

  http://www.aveon.fi
Pyydä lisätietoa

Kohteesta Ahjokatu 15, Jyväskylä

 

B2B palvelut

LASTAUSRATKAISUT

Mainos
Lastauksien ratkaisut tehokkaammin ja turvallisemmin

HALLIT