Vuokrataan toimistotilat - Helsinki
Salomonkatu 17, Kamppi, 00100 Helsinki #10864734
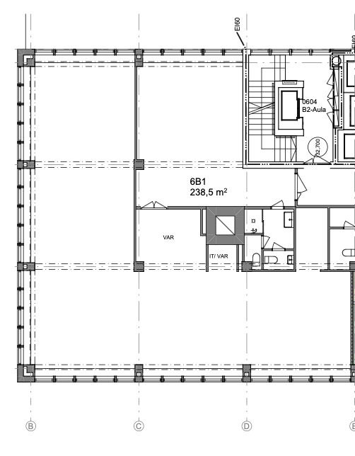
Toimistotilaa loistavalla sijainnilla Kampissa, Autotalossa.
Tämä 238,5 m² tila sijaitsee B-rapun 6. kerroksessa. Toimisto on pääasiassa avonaista, ja siinä on omat wc:t. Tila voidaan tarvittaessa jakaa kahteen pienempään osaan.
Autotalo eli Salomonkatu 17 on toimistokiinteistö erinomaisella paikalla Kampissa. Kampin metroasema ja bussiterminaali sijaitsevat aivan kiinteistön vieressä. Kampin keskuksen monipuoliset palvelut ovat kävelyetäisyydellä. Autotalossa on mm. viihtyisä ravintolamaailma, vuokrattavia neuvottelutiloja, autopaikkoja pysäköintihallissa, pyöräparkki ja suihkutilat. Kiinteistön katutasossa on K-Market. Kiinteistön 13. kerroksesta löytyy myös upea erikseen vuokrattava kokous- ja juhlatila Sky Lounge. Kiinteistö valmistui täydellisestä peruskorjauksesta vuonna 2015.
Kysy lisää numerosta 044 723 4700 tai info@bref.fi. Palvelumme on tilanhakijoille ilmainen.
Hissi
Bureau Real Estate Finland Oy
Lars Sonckin kaari 16, 02600 Espoo
Näytä puhelinnumero
0447234700
Bureau Real Estate Finland Oy
https://www.bref.fi