Vuokrataan toimistotilat - Helsinki
Tallberginkatu 2, Ruoholahti, 00180 Helsinki #10864721
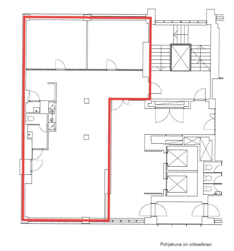
Tyylikäs ja moderni, 5. kerroksen 133 m² toimistotila hyvien kulkuyhteyksien varrella Ruoholahdessa.
Osoite
Tallberginkatu 2, 00180 Helsinki
Tilatyyppi
Toimistotilaa
133 m2
Pohjapiirros
Kiinteistö
5. kerroksen tyylikäs huonetoimisto loistavalla sijainnilla.
Tallbergintalo sijaitsee Ruoholahdessa Kaapelitehtaan vieressä erinomaisten kulkuyhteyksien varrella.
Tallbergintalo on yhdistetty Itämerentaloon, ja ne toimivat sujuvasti käsi kädessä: taloilla on yhteiset neuvottelutilat, lounasravintola ja lastauslaituri sekä mahdollisuus kulkea sisäkautta talosta toiseen.
Rakennuksessa on toimistotiloja seitsemässä kerroksessa yli 7 000 m². Rakennuksessa on kaksi porraskäytävää, hissit ja kaukolämpö. Rakennuksen julkisivu on rapattu.
Kauppakeskus Ruoholahti palveluineen ja ravintoloineen on viiden minuutin kävelyetäisyydellä.
Tallbergintalo sijaitsee Ruoholahdessa Tallberginkadun ja Porkkalankadun risteyksessä erinomaisten kulkuyhteyksien varrella. Julkisten käyttäjiä palvelevat lukuisten lännen suunnan bussilinjojen pysäkit sekä kävelyetäisyydellä sijaitseva Ruoholahden metroasema.
Kaapelitehdas sijaitsee kiinteistön vieressä ja kauppakeskus Ruoholahti palveluineen ja ravintoloineen on viiden minuutin kävelyetäisyydellä.
Tallbergintalo sijaitsee Ruoholahdessa Kaapelitehtaan vieressä erinomaisten kulkuyhteyksien varrella.
Tallbergintalo on yhdistetty Itämerentaloon, ja ne toimivat sujuvasti käsi kädessä: taloilla on yhteiset neuvottelutilat, lounasravintola ja lastauslaituri sekä mahdollisuus kulkea sisäkautta talosta toiseen.
Rakennuksessa on toimistotiloja seitsemässä kerroksessa yli 7 000 m². Rakennuksessa on kaksi porraskäytävää, hissit ja kaukolämpö. Rakennuksen julkisivu on rapattu.
Kauppakeskus Ruoholahti palveluineen ja ravintoloineen on viiden minuutin kävelyetäisyydellä.
Tallbergintalo sijaitsee Ruoholahdessa Tallberginkadun ja Porkkalankadun risteyksessä erinomaisten kulkuyhteyksien varrella. Julkisten käyttäjiä palvelevat lukuisten lännen suunnan bussilinjojen pysäkit sekä kävelyetäisyydellä sijaitseva Ruoholahden metroasema.
Kaapelitehdas sijaitsee kiinteistön vieressä ja kauppakeskus Ruoholahti palveluineen ja ravintoloineen on viiden minuutin kävelyetäisyydellä.
Vapautuu
Heti
Rakennusvuosi
1938
Saneerausvuosi
1993
Kerros
5 / 7
Energiatehokkuusluokka
E2007
Näkyvällä paikalla
Hissi
Ota yhteyttä
ScanReal Oy LKV
Opus Business Park
Hitsaajankatu 24
00810 Helsinki
info@scanreal.fi
Puh:
Näytä puhelinnumero
020 730 8830
Sopivat toimitilat yhdellä otolla!
Kartoitamme toimitilatarpeesi ja etsimme yrityksellesi parhaiten sopivat vapaat toimitilat. Koska vuokranantajat maksavat palvelumme, on tämä yrityksellesi veloituksetonta.
OTA YHTEYTTÄ - SOVI NÄYTTÖ!
Kaikki kohteemme eivät ole netissä, kerro tilatarpeesi niin kartoitamme vaihtoehdot.
Palvelumme on tilanhakijalle ilmainen
Pyydä lisätietoa
