Vuokrataan tuotantotilat - Pirkkala
Jasperintie 334, Linnakorpi, 33960 Pirkkala #10864679
Etsitkö kasvua tukevaa toimitilaa erinomaisella sijainnilla? Kesällä 2026 vapautumassa vuokrattavaksi selkeää ja korkeaa hallitilaa näkyvällä paikalla, suoraan ohitustien varrella. Kiinteistölle on helppo saavutettavuus joka puolelta kaupunkia.
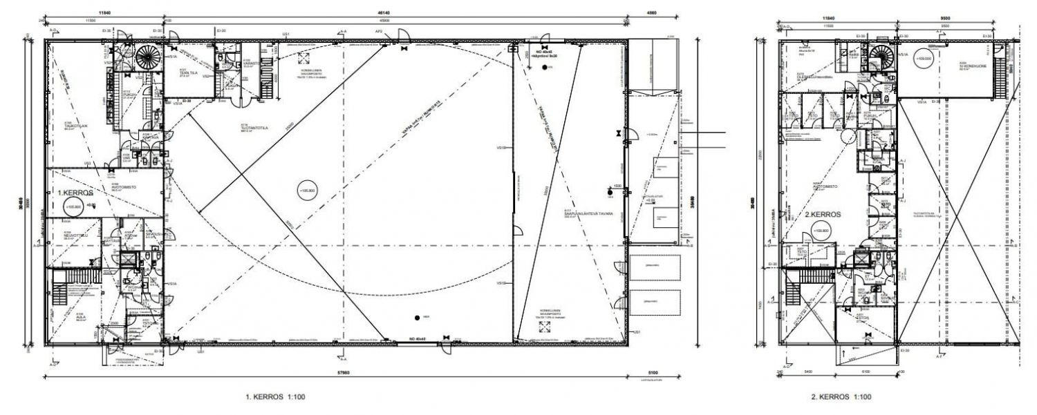
Vuokrattavan toimitilan kokonaispinta-ala on 2143 m², josta noin 1450 m² on korkeaa ja avaraa hallitilaa. Toimistoa löytyy kahdessa kerroksessa yhteensä noin 682 m² – tilavat huoneet isoilla ikkunoilla tarjoavat valoisan ja viihtyisän työympäristön.
Hallissa on kaksi nosto-ovea sekä lastauslaituri, jossa kaksi kuormaussiltaa helpottavat tavaraliikennettä. Tilat on varustettu pukuhuoneilla sekä hallin että toimiston puolella – lisäksi käytössä on oma sauna ja edustustila.
Kohteella on hyvin parkkipaikkoja saatavilla.
Vuokraan lisätään alv + kulut.
Ota yhteyttä ja kysy lisää!
www.blanctoimitilat.fi
Masa Hakala
masa.hakala@blanckiinteisto.com
+358 40 964 2482
