Vuokrataan toimistotilat, liiketilat - Helsinki
Sörnäistenlaituri 3, Kalasatama, 00540 Helsinki #10864655
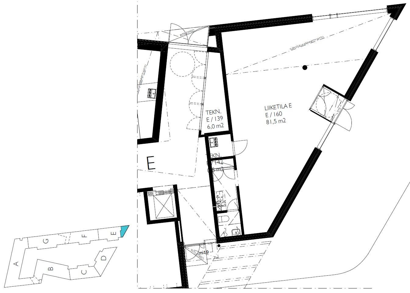
Vuokrataan hieno 81,5 m² liiketila Kalasatamasta merinäköalalla! Tila on pääosin avotilaa varustettuna pienellä keittiöllä sekä wc-tilalla.
Kauppakeskus REDIn kaikenkattavat palvelut löytyvät parin minuutin kävelymatkan päässä. Kohteeseen on erinomaiset liikenneyhteydet; Kalasataman ja Pasilan välillä liikennöinnin aloittanut raitiovaunu, metro sekä linja- autot ympäri Helsinkiä.
Kysy lisätietoja tai sovitaan käynti kohteelle!
Osoite
Sörnäistenlaituri 3, 00540 Helsinki
Tilatyyppi
Toimistotilaa
81 m2
Liiketilaa
81 m2
Yhteensä
81 m2
Kiinteistö
As Oy Helsingin Trokarinlinna
Vapautuu
Kysy
Rakennusvuosi
2013
Katutasossa
Näkyvällä paikalla
Ota yhteyttä
Hausala Oy
Mika Savikko
Näytä puhelinnumero
050 472 7077
Mikko Ranta
Näytä puhelinnumero
050 360 6500
Pyydä lisätietoa
