Vuokrataan toimistotilat - Oulu
Mäkelininkatu 40 B, Keskusta, 90100 Oulu #10864636
Osoite
Mäkelininkatu 40 B, 90100 Oulu
Tilatyyppi
Toimistotilaa
50 m2
Vuokra
550,00 €/kk
Vuokraan sisältyy sähkö, vesi, lämpö
Muuta
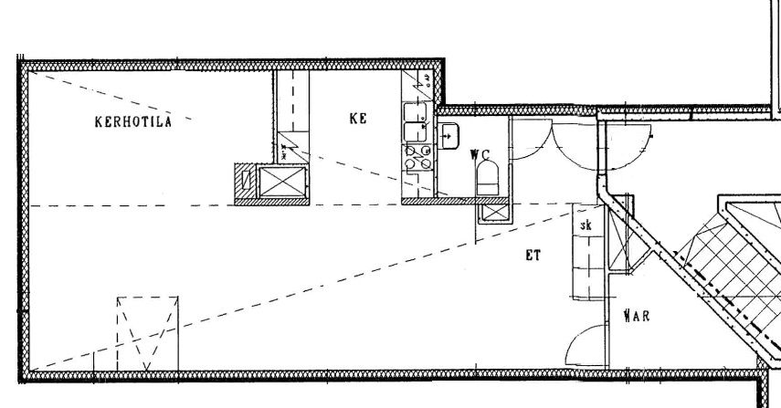
Keskustassa hyvällä sijainnilla asuinkerrostalon ylimmässä kerroksessa vuokrattavana persoonallinen 50m2 toimisto-/liiketila.
Tarjolla hyvätasoinen avara tila, joka toimii loistavasti muun muassa toimistokäytössä.
Tilassa toiminut aiemmin mm. kampaamo. Tilaan on esteetön pääsy, sisäänkäynnissä luiska ja talossa hissi.
Tilan katossa pieni kattoikkuna ja tilassa hyvä valaistus sekä koneellinen ilmanvaihto. Helposti saavutettava tila on parin korttelin päässä ydinkeskustasta. Tila muodostuu yhdestä avonaisesta tilasta, jossa keittiösyvennys ja lisäksi varastokomero sekä vessa.
Vuokra 550 €/kk. Vuokraan sisältyy lämmitys ja tavanomaisessa käytössä sähkö ja vesi.
Tila on heti vapaa!
Ole yhteydessä ja sovitaan esittely.
Esittelyt ja lisätiedot
Sami Kortesoja 0458964803
sami.kortesoja@kiinteistotahkola.fi
Eikö tämä ole sopiva? Kysy muita vaihtoehtojamme!
Tarjolla hyvätasoinen avara tila, joka toimii loistavasti muun muassa toimistokäytössä.
Tilassa toiminut aiemmin mm. kampaamo. Tilaan on esteetön pääsy, sisäänkäynnissä luiska ja talossa hissi.
Tilan katossa pieni kattoikkuna ja tilassa hyvä valaistus sekä koneellinen ilmanvaihto. Helposti saavutettava tila on parin korttelin päässä ydinkeskustasta. Tila muodostuu yhdestä avonaisesta tilasta, jossa keittiösyvennys ja lisäksi varastokomero sekä vessa.
Vuokra 550 €/kk. Vuokraan sisältyy lämmitys ja tavanomaisessa käytössä sähkö ja vesi.
Tila on heti vapaa!
Ole yhteydessä ja sovitaan esittely.
Esittelyt ja lisätiedot
Sami Kortesoja 0458964803
sami.kortesoja@kiinteistotahkola.fi
Eikö tämä ole sopiva? Kysy muita vaihtoehtojamme!
Vapautuu
Heti vapaa
Rakennusvuosi
1998
Kerros
5
Energiatehokkuusluokka
H (ei luokitusta)
Ota yhteyttä
Kiinteistö-Tahkola Oy
Lumijoentie 1, 90400 Oulu
Näytä puhelinnumero
0207 480 250
Sami Kortesoja
Näytä puhelinnumero
045 896 4803
Pyydä lisätietoa
