Vuokrataan toimistotilat - Helsinki
Rälssintie 6, Pukinmäki, 00720 Helsinki #10864561
Toimistotilaa Helsingin Pukinmäessä.
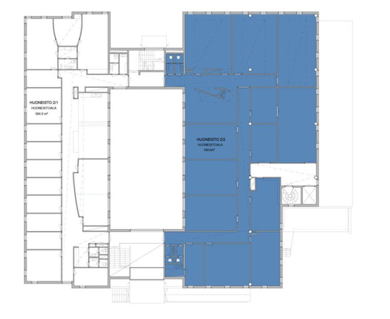
Tämä 550 m² toimistotila sijaitsee kiinteistön 2. kerroksessa. Tila on huoneellinen, ja siihen kuuluvat omat wc-tilat.
Rälssintie 6 sijaitsee Pukinmäessä, lyhyen matkan päässä Pukinmäen juna-asemasta. Lähellä on useita päivittäispalveluja ja kauppakeskus Malmintori sijaitsee reilun 4 kilometrin päässä. Kiinteistön yhteydessä on 33 autopaikkaa.
Kysy lisää numerosta 044 723 4700 tai info@bref.fi. Palvelumme on tilanhakijoille ilmainen.
Osoite
Rälssintie 6, 00720 Helsinki
Tilatyyppi
Toimistotilaa
550 m2
Palvelut
Pukinmäen monipuoliset päivittäispalvelut lyhyen matkan päässä.
Vapautuu
Kysy
Kerros
2
Energiatehokkuusluokka
Ei lain edellyttämää energiatodistusta
Ota yhteyttä
Bureau Real Estate Finland Oy
Lars Sonckin kaari 16, 02600 Espoo
Näytä puhelinnumero
0447234700
Bureau Real Estate Finland Oy
https://www.bref.fiPyydä lisätietoa
