Vuokrataan toimistotilat - Helsinki
Itämerentori 2, Ruoholahti, 00180 Helsinki #10864536
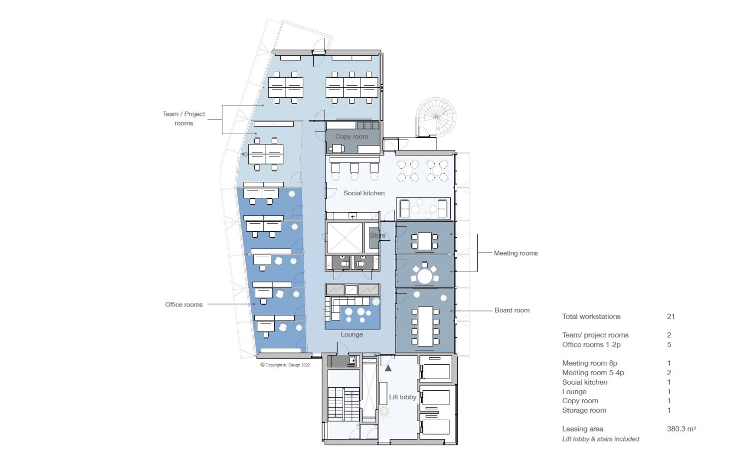
Itämerentorni on Helsingin Ruoholahdessa sijaitseva 16-kerroksinen, arkkitehti Pekka Helinin suunnittelema toimistorakennus, joka valmistui vuonna 2000 Sitran pääkonttoriksi. Rakennus tunnetaan näyttävästä teräs- ja lasijulkisivustaan sekä BREEAM Very Good -ympäristösertifikaatistaan. Ylimmässä kerroksessa on upea näköalaterassi ja kattosauna, ja kiinteistössä on monipuoliset palvelut, kuten aulapalvelut, vuokrattavat kokoustilat, edustussauna ja pysäköintihalli.
Sijainti on erinomainen sekä joukkoliikenteellä että autolla kulkeville: metroasema on aivan vieressä, ja Länsiväylä tarjoaa nopean yhteyden autoilijoille. Lähialueelta löytyy runsaasti lounasravintoloita, kauppakeskus, S-market ja muita palveluita, mikä tekee Itämerentornista toimivan ja edustavan sijainnin monenlaisille yrityksille.
Me Croisettella autamme teitä löytämään teille parhaat tilat! Olemme puolueettomia asiantuntijoita ja tunnemme toimitilamarkkinat, talot sekä tilat vankalla kokemuksella. Meillä on välityksessä kaikki toimitilat ja tiedämme niiden alustavat vuokratasot.
Tehtävämme on tehdä toimitilahaustanne onnistunutta ja helppoa. Saamme palkkiomme kiinteistönomistajalta, joten sinulle palvelumme on täysin maksuton. Jos kiinnostuit, ota yhteyttä!
Hissi
Croisette Real Estate Partner
Erottajankatu 5 A 6, 00130 Helsinki
Näytä puhelinnumero
+358 400 585 857
Croisette Vuokraus
Näytä puhelinnumero
+358400585857
