Vuokrataan liiketilat - Kouvola
Lehtikaari 3, Korjala, 45130 Kouvola #10864531
Liiketilaa Kouvolasta
Osoite
Lehtikaari 3, 45130 Kouvola
Tilatyyppi
Liiketilaa
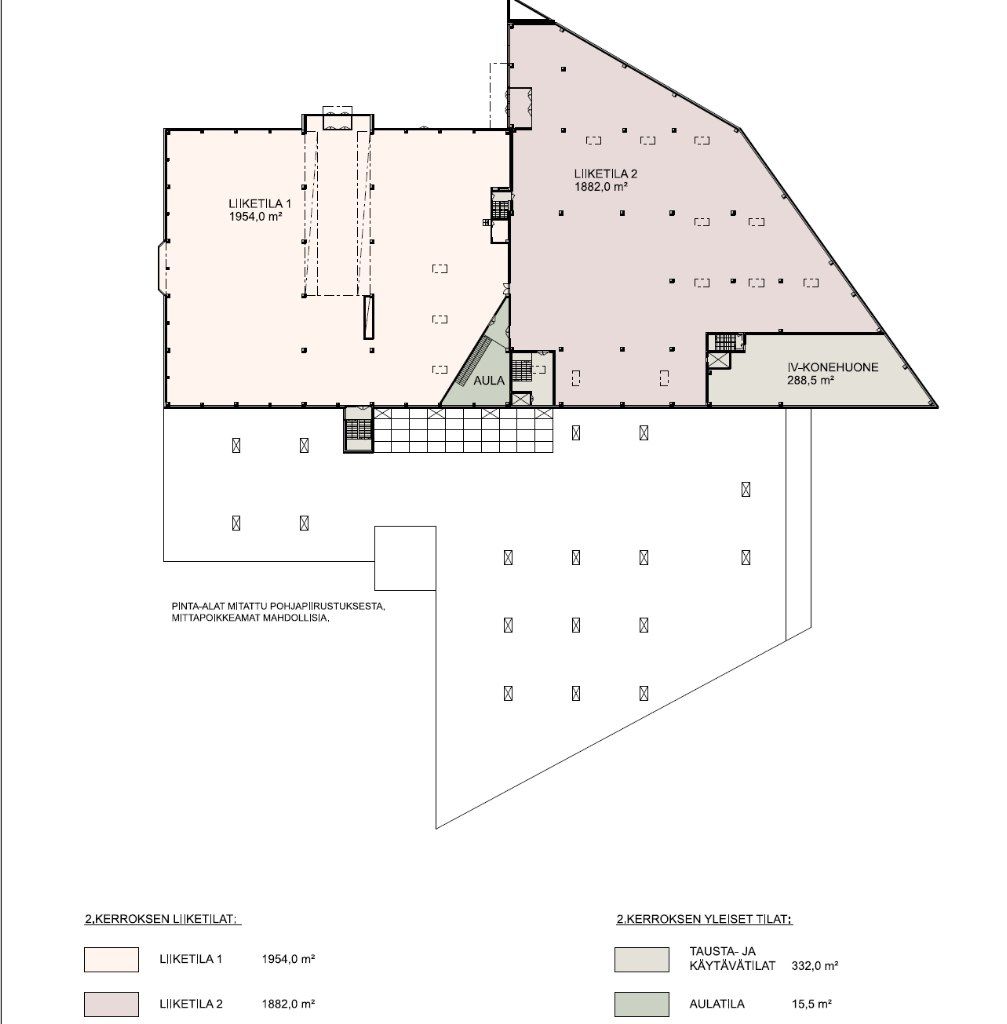
1954 m2
Muuta
Vuokrattavana 1954 m² katutason liiketila Kouvolan Korjalan alueella. Tila soveltuu monipuoliseen liiketoimintaan ja tarjoaa laajat puitteet erilaisiin käyttötarkoituksiin.
Kohde sijaitsee näkyvällä paikalla ja on helposti saavutettavissa, mikä tukee asiakasvirtoja ja liiketoiminnan toimivuutta.
Tervetuloa tutustumaan, varaathan välittäjältä oman esittelyaikasi. Voit kysyä meiltä myös muita sopivia vaihtoehtoja, kauttamme löydät juuri Teidän tarpeisiinne sopivat tilat. Palvelumme on tilanhakijalle veloitukseton
Kohde sijaitsee näkyvällä paikalla ja on helposti saavutettavissa, mikä tukee asiakasvirtoja ja liiketoiminnan toimivuutta.
Tervetuloa tutustumaan, varaathan välittäjältä oman esittelyaikasi. Voit kysyä meiltä myös muita sopivia vaihtoehtoja, kauttamme löydät juuri Teidän tarpeisiinne sopivat tilat. Palvelumme on tilanhakijalle veloitukseton
Vapautuu
Kysy
Kerros
katutaso
Ota yhteyttä
Tuloskiinteistöt Oy
Rikhardinkatu 2 B 5, 00130 Helsinki
Näytä puhelinnumero
(09) 6841 620
Jorma Ryynänen
Commercial Real Estate Advisor LKV, LVV
Näytä puhelinnumero
+358 40 708 4064
Otto Ahtola
Commercial Real Estate Advisor
Näytä puhelinnumero
+358 40 042 2830
Pyydä lisätietoa
