Vuokrataan toimistotilat - Helsinki
Salomonkatu 17, Kamppi, 00100 Helsinki #10864522
Autotalo - Toimisto 492 m²
Osoite
Salomonkatu 17, 00100 Helsinki
Tilatyyppi
Toimistotilaa
492 m2
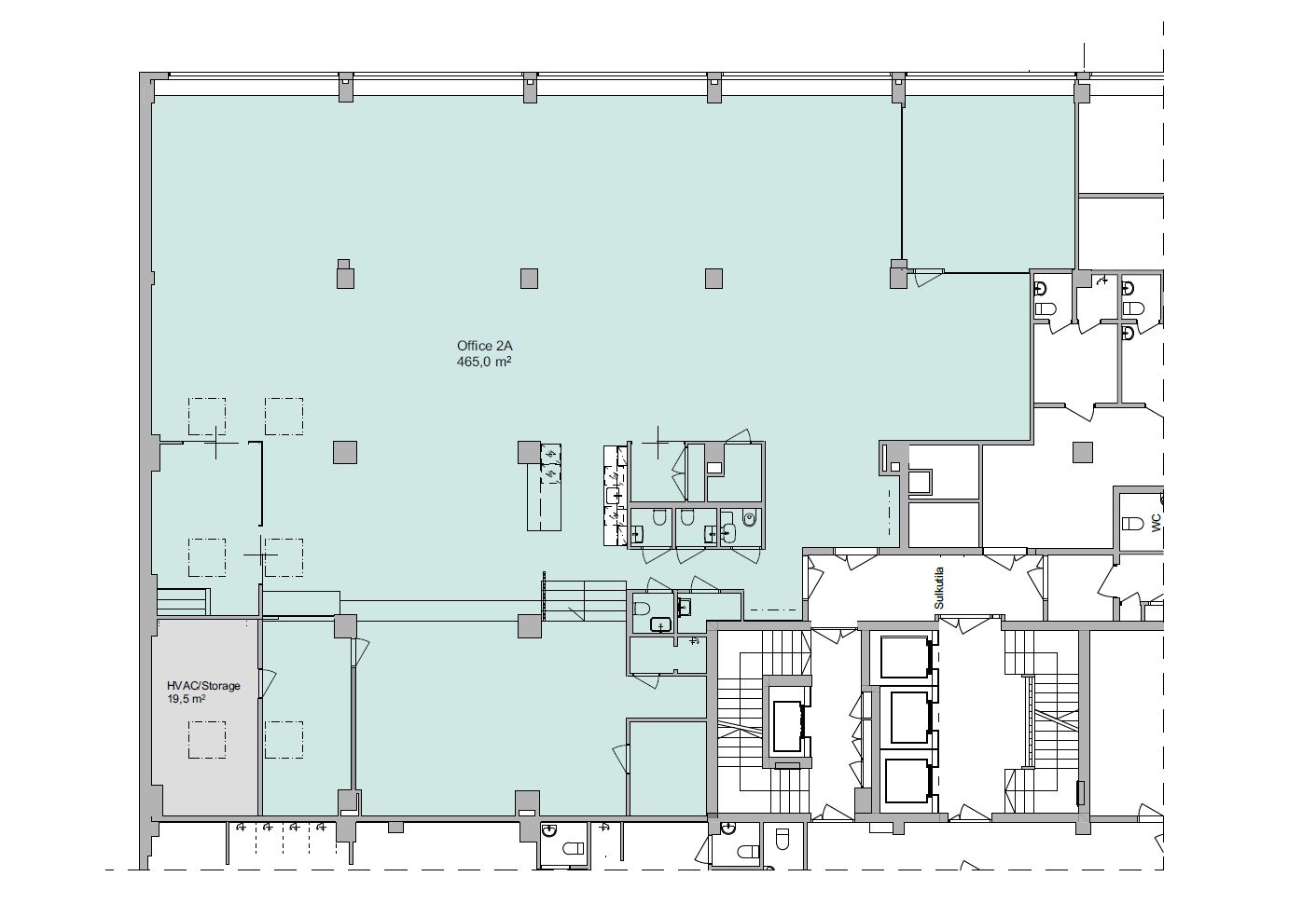
Pohjapiirros
Kiinteistö
A-portaan 2. kerroksen toimisto tarjoaa toimivat puitteet moderniin työskentelyyn. Tila muodostuu valoisasta ja avarasta avotilasta ja erikokoisista työhuoneista. Käytännöllinen avokeittiö tukee sujuvaa arkea ja viihtyvyyttä, ja tiloissa on neljä wc:tä sekä erillinen siivous- ja varastotila. Ikkunat tuovat runsaasti luonnonvaloa ja tarjoavat avarat näkymät. Kaksi sisäänkäyntiovea mahdollistavat monipuolisen tilan käytön. Tilan kokonaispinta-ala on 492 m², josta varsinaista toimistotilaa on 465 m² ja lisäksi jyvitettyä osuutta yhteiskäyttöisestä kerrosaulan sulkutilasta. Tila vapautuu 6 kuukaudessa.
Tämä toimisto soveltuu erinomaisesti yritykselle, joka arvostaa tehokasta tilankäyttöä, valoisuutta ja modernia kokonaisuutta keskeisellä sijainnilla.
Kysy lisätietoja!
Autotalo – Kampin ikoninen maamerkki
Autotalo tarjoaa modernia ja hyväkuntoista toimitilaa sekä ravintolaliiketilaa Helsingin sydämessä. Vuonna 2015 valmistunut perusparannushanke takaa tilojen nykyaikaisuuden ja toimivuuden.
Sijainti
Autotalo on valmistunut vuonna 1958 ja se on osa Kampin Autotalokorttelia. Rakennuksessa on 12 maanpäällistä ja 3 maanalaista kerrosta, jotka tarjoavat monipuoliset tilaratkaisut eri tarpeisiin. Autotalokortteli sijaitsee näkyvällä paikalla Kampin kauppakeskuksen vieressä, ja kohteeseen on erinomaiset julkiset kulkuyhteydet metrolla, raitiovaunulla ja busseilla. Yksityisautoille on maanalaista pysäköintitilaa korttelin omassa autohallissa.
Palvelut
Peruskorjaukset ja parannushankkeet ovat avartaneet tiloja ja tehneet niistä käyttäjilleen avoimempia. Autotalon aulatila on uudistettu näyttäväksi ja viihtyisäksi. Kiinteistö on esteetön ja sopii liikuntarajoitteisille. Upeat edustustilat saunoineen erilaisten tilaisuuksien järjestämiseen sijaitsevat toisen toimistotornin ylimmässä kerroksessa. Monipuolinen ravintolamaailma ja K-kauppa löytyvät katutasosta. Lisäksi kiinteistössä on pyöräparkki suihkuineen, auton pesupalvelut ja sähköautojen latauspisteitä parkkihallissa, mikä tekee työmatkapyöräilystä ja autoilusta entistä mukavampaa.
Ympäristöystävällisyys
Kiinteistön Breeam In-Use -ympäristösertifikaatti tasolla Very Good korostaa kiinteistön ympäristöystävällisyyttä ja korkeaa laatua.
Ota yhteyttä
Kiinnostuitko? Ota yhteyttä ja tule tutustumaan!
Toimitilavälityspalvelumme on tilanhakijalle maksuton.
Tämä toimisto soveltuu erinomaisesti yritykselle, joka arvostaa tehokasta tilankäyttöä, valoisuutta ja modernia kokonaisuutta keskeisellä sijainnilla.
Kysy lisätietoja!
Autotalo – Kampin ikoninen maamerkki
Autotalo tarjoaa modernia ja hyväkuntoista toimitilaa sekä ravintolaliiketilaa Helsingin sydämessä. Vuonna 2015 valmistunut perusparannushanke takaa tilojen nykyaikaisuuden ja toimivuuden.
Sijainti
Autotalo on valmistunut vuonna 1958 ja se on osa Kampin Autotalokorttelia. Rakennuksessa on 12 maanpäällistä ja 3 maanalaista kerrosta, jotka tarjoavat monipuoliset tilaratkaisut eri tarpeisiin. Autotalokortteli sijaitsee näkyvällä paikalla Kampin kauppakeskuksen vieressä, ja kohteeseen on erinomaiset julkiset kulkuyhteydet metrolla, raitiovaunulla ja busseilla. Yksityisautoille on maanalaista pysäköintitilaa korttelin omassa autohallissa.
Palvelut
Peruskorjaukset ja parannushankkeet ovat avartaneet tiloja ja tehneet niistä käyttäjilleen avoimempia. Autotalon aulatila on uudistettu näyttäväksi ja viihtyisäksi. Kiinteistö on esteetön ja sopii liikuntarajoitteisille. Upeat edustustilat saunoineen erilaisten tilaisuuksien järjestämiseen sijaitsevat toisen toimistotornin ylimmässä kerroksessa. Monipuolinen ravintolamaailma ja K-kauppa löytyvät katutasosta. Lisäksi kiinteistössä on pyöräparkki suihkuineen, auton pesupalvelut ja sähköautojen latauspisteitä parkkihallissa, mikä tekee työmatkapyöräilystä ja autoilusta entistä mukavampaa.
Ympäristöystävällisyys
Kiinteistön Breeam In-Use -ympäristösertifikaatti tasolla Very Good korostaa kiinteistön ympäristöystävällisyyttä ja korkeaa laatua.
Ota yhteyttä
Kiinnostuitko? Ota yhteyttä ja tule tutustumaan!
Toimitilavälityspalvelumme on tilanhakijalle maksuton.
Vapautuu
Kysy
Kerros
2
Ota yhteyttä
Logistila Oy
Kylätie 11-13, 00320 HELSINKI
Karoliina Turppo
Näytä puhelinnumero
050 345 3258
Pyydä lisätietoa
