Vuokrataan liiketilat - Helsinki
Sitratori 5, Kannelmäki, 00420 Helsinki #10864517
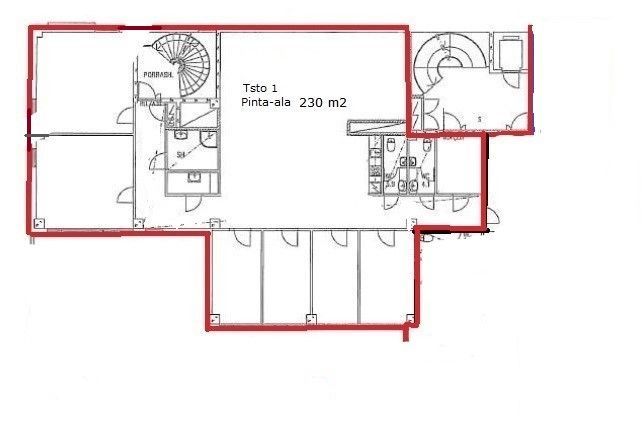
230m2 toimisto-/liiketila Kannelmäestä
Osoite
Sitratori 5, 00420 Helsinki
Tilatyyppi
Liiketilaa
230 m2
Kiinteistö
Vuokrataan 230 m2 toimisto-/liiketila Kannelmäen Sitratorilla Kanneltalon vastapäätä. Huoneisto sijaitsee hissillisen toimistokiinteistön 2 kerroksessa. Tilassa on useita huoneita, avotila keittiöllä, suihku ja 2 wc. Tiloissa on koneellinen ilmanvaihto.
Huoneisto on ALV vapaa ja soveltuu myös verottomalle toiminnalle ja yhdistyksille
Kerrokselle on henkilöhissiyhteys ja katutasolla sisäänkäynti on varusteltu rampilla ja soveltuu myös liikuntaesteellisille käyttäjille.
Erinomainen sijainti Kannelmäen juna-aseman ja bussipysäkin vieressä. Kadun varrella on maksuton 2h-4h autopysäköinti.
Vieressä on ravintolat ja ruokakauppa.
Tila vapautuu syksymmällä.
Huoneisto on ALV vapaa ja soveltuu myös verottomalle toiminnalle ja yhdistyksille
Kerrokselle on henkilöhissiyhteys ja katutasolla sisäänkäynti on varusteltu rampilla ja soveltuu myös liikuntaesteellisille käyttäjille.
Erinomainen sijainti Kannelmäen juna-aseman ja bussipysäkin vieressä. Kadun varrella on maksuton 2h-4h autopysäköinti.
Vieressä on ravintolat ja ruokakauppa.
Tila vapautuu syksymmällä.
Vapautuu
syksymmällä
Kerros
2
Ota yhteyttä
Comreal Oy LKV
Salla Saraniemi
Näytä puhelinnumero
040 138 1081
Läkkisepänkuja 6, 00620 Helsinki
Comreal on valtakunnallinen, asiantunteva ja aktiivinen kiinteistöalan kumppani, joka palvelee sekä kiinteistönomistajia että toimitilojen käyttäjiä. Toimintamme ydin on yksinkertainen: tarjota erinomaista palvelua kaikille.
Pyydä lisätietoa
