Vuokrataan tuotantotilat - Lahti
Alavankatu 2, 15610 Lahti #10864447
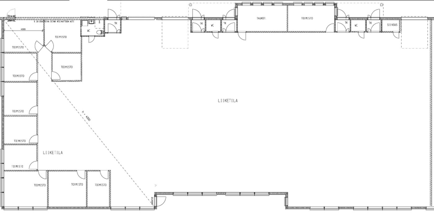
Suositulla Nikkilän alueella vapautumassa erinomaista, valoisaa liiketilaa joka sopii myös tuotantotilaksi tai varastoksi.
Vierestä kulkee vilkas Uudenmaankatu jolle tästä tilasta on esteetön näkyvyys ja vieläpä Aukeankadun risteykseen.
Alueella mm. Lukkokeskus, Carglas ja Plus Katsastus. Lähellä mm. Länsiauto, Hedin Automotive ja Tokmanni.
Tilaan on kaksi nosto- ovea ja henkilöovea ja sisäänajomahdollisuus, myös pari toimistohuonetta löytyy ja kuituyhteys. Korkeus 3,5- 4m.
Lisätiedot: mika.tilli@rhg.fi. 040 7013005
Tähän kannattaa tarttua heti!
RHG Real Estate
Hämeenkatu 2 B20, 20500 Turku
Mika Tilli
Välittäjä, LKV
Näytä puhelinnumero
0407013005
