Vuokrataan toimistotilat - Helsinki
Valimotie 13 B, Pitäjänmäki, 00380 Helsinki #10864437
Toimistotilaa Pitäjänmäessä, Vihdintien varrella.
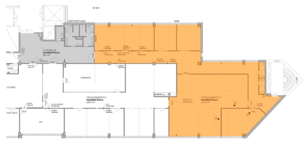
Tämä 279 m² toimistotila sijaitsee kiinteistön toisessa kerroksessa. Tila sisältää jyvitetyn aulatilan, jossa on wc-tilat. Toimisto on pääosin avonainen. Toimistoa on mahdollista muunnella vuokralaisen tarpeiden mukaan.
Valimotie 13B:n toimitilat ovat joustavasti muokattavissa avo- ja huonekonttoreiksi sekä niiden yhdistelmiksi. Kaikkiin kerroksiin tavarahissiyhteys. Kiinteistön alakerrassa myös hyvät lastauslaiturit. Valimotie 13A tarjoaa yritykselle monipuoliset palvelut aina aulavastaanotosta lounasruokalaan ja kuntosaliin.
Kysy lisää numerosta 044 723 4700 tai info@bref.fi. Palvelumme on tilanhakijoille ilmainen.
Hissi
Bureau Real Estate Finland Oy
Lars Sonckin kaari 16, 02600 Espoo
Näytä puhelinnumero
0447234700
Bureau Real Estate Finland Oy
https://www.bref.fi