Vuokrataan toimistotilat, liiketilat - Helsinki
Sörnäistenlaituri 3, Kalasatama, 00540 Helsinki #10864400
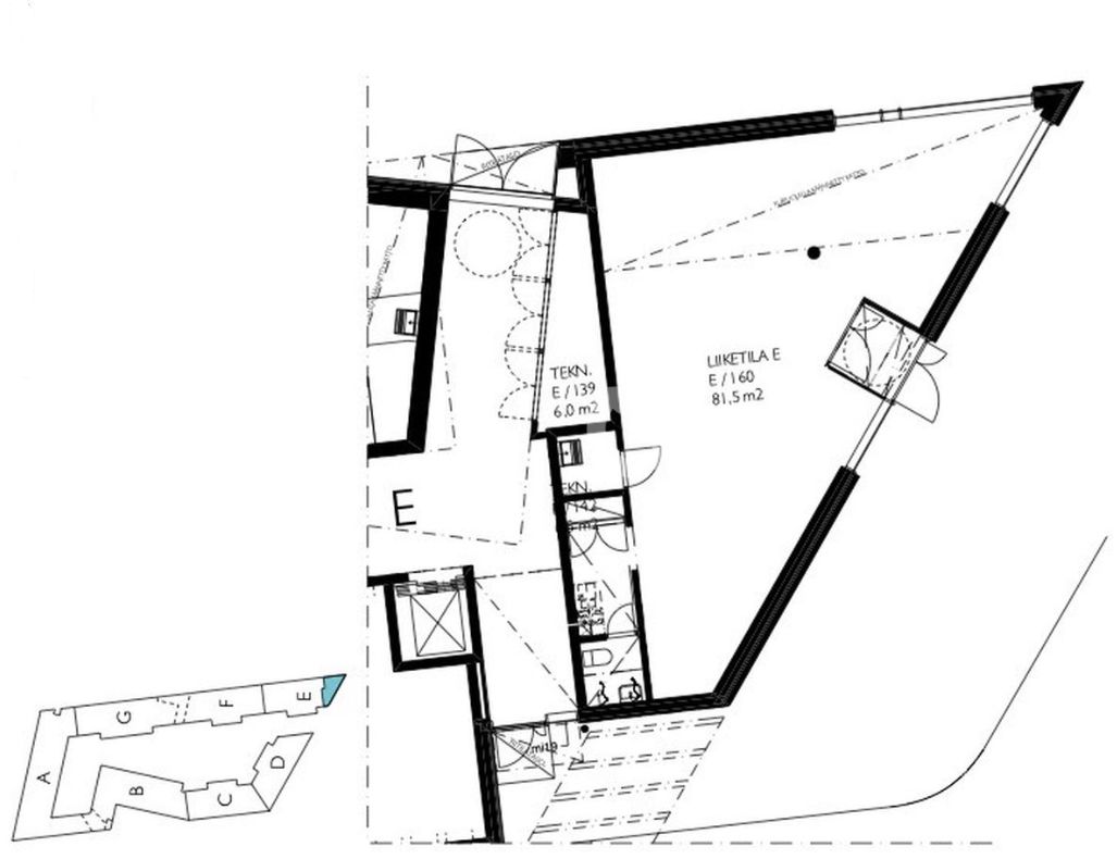
Helsingin Sörnäistenlaituri 3 - Liiketila 81,5 m²
Osoite
Sörnäistenlaituri 3, 00540 Helsinki
Tilatyyppi
Toimistotilaa
82 m2
Liiketilaa
82 m2
Yhteensä
82 m2
Pohjapiirros
Kiinteistö
Vuokrattavana liiketila merinäköalalla Helsingin Kalasatamassa
Tarjolla vuokrattavaksi upea 81,5 m² liiketila Asunto Oy Helsingin Trokarinlinnassa, Kalasataman alueella. Tämä moderni ja energiatehokas rakennus tarjoaa erinomaiset puitteet liiketoiminnalle. Sopii myös toimistotilaksi.
Tämä liiketila tarjoaa ainutlaatuisen mahdollisuuden nauttia merinäköalasta ja modernista ympäristöstä.
Helsingin Sörnäistenlaituri 3, Kalasatama
Moderni ja helposti saavutettava kiinteistö elinvoimaisessa Kalasatamassa tarjoaa erinomaiset puitteet liiketoiminnalle. Alue kehittyy voimakkaasti ja houkuttelee niin yrityksiä kuin asiakkaita. Tässä kohteessa yhdistyvät näkyvyys, saavutettavuus ja arjen sujuvuus. Keskeinen sijainti meren äärellä ja lähellä kantakaupunkia tekee kohteesta houkuttelevan niin työntekijöille kuin asiakkaille.
Sijainti
Helsingin Sörnäistenlaituri 3 sijaitsee keskeisellä paikalla Helsingin Kalasatamassa, hyvien liikenneyhteyksien varrella. Kohteeseen on helppo saapua niin julkisilla kuin omalla autolla.
Metroasema: n. 540 m
Raitiovaunupysäkki: n. 340 m
Bussipysäkki: n. 510 m
Juna-asema: n. 5,4 km
Lentoasema: n. 18 km
Palvelut
Lähialue tarjoaa kattavat päivittäiset palvelut, jotka tukevat sujuvaa arkea ja viihtyvyyttä:
Ravintoloita ja kahviloita
Ruokakauppa
Kampaamo- ja parturipalvelut
Kalasataman monipuolinen palvelutarjonta kasvaa jatkuvasti, mikä lisää alueen vetovoimaa entisestään.
Vastuullisuus
Kohde on osa modernia kaupunkiympäristöä, jossa panostetaan energiatehokkuuteen, hyviin kulkuyhteyksiin ja joukkoliikenteen käyttöön. Erinomainen saavutettavuus tukee vähäpäästöistä liikkumista, ja tiivis kaupunkirakenne edistää kestävää kehitystä osana Helsingin kaupunkikuvaa.
Tämä toimitila sopii erinomaisesti yritykselle, joka arvostaa keskeistä sijaintia, hyviä yhteyksiä ja kehittyvää ympäristöä.
Ota yhteyttä
Kiinnostuitko? Ota yhteyttä ja tule tutustumaan tiloihin!
Toimitilavälityspalvelumme on toimitilaa etsivälle täysin maksuton.
Tarjolla vuokrattavaksi upea 81,5 m² liiketila Asunto Oy Helsingin Trokarinlinnassa, Kalasataman alueella. Tämä moderni ja energiatehokas rakennus tarjoaa erinomaiset puitteet liiketoiminnalle. Sopii myös toimistotilaksi.
Tämä liiketila tarjoaa ainutlaatuisen mahdollisuuden nauttia merinäköalasta ja modernista ympäristöstä.
Helsingin Sörnäistenlaituri 3, Kalasatama
Moderni ja helposti saavutettava kiinteistö elinvoimaisessa Kalasatamassa tarjoaa erinomaiset puitteet liiketoiminnalle. Alue kehittyy voimakkaasti ja houkuttelee niin yrityksiä kuin asiakkaita. Tässä kohteessa yhdistyvät näkyvyys, saavutettavuus ja arjen sujuvuus. Keskeinen sijainti meren äärellä ja lähellä kantakaupunkia tekee kohteesta houkuttelevan niin työntekijöille kuin asiakkaille.
Sijainti
Helsingin Sörnäistenlaituri 3 sijaitsee keskeisellä paikalla Helsingin Kalasatamassa, hyvien liikenneyhteyksien varrella. Kohteeseen on helppo saapua niin julkisilla kuin omalla autolla.
Metroasema: n. 540 m
Raitiovaunupysäkki: n. 340 m
Bussipysäkki: n. 510 m
Juna-asema: n. 5,4 km
Lentoasema: n. 18 km
Palvelut
Lähialue tarjoaa kattavat päivittäiset palvelut, jotka tukevat sujuvaa arkea ja viihtyvyyttä:
Ravintoloita ja kahviloita
Ruokakauppa
Kampaamo- ja parturipalvelut
Kalasataman monipuolinen palvelutarjonta kasvaa jatkuvasti, mikä lisää alueen vetovoimaa entisestään.
Vastuullisuus
Kohde on osa modernia kaupunkiympäristöä, jossa panostetaan energiatehokkuuteen, hyviin kulkuyhteyksiin ja joukkoliikenteen käyttöön. Erinomainen saavutettavuus tukee vähäpäästöistä liikkumista, ja tiivis kaupunkirakenne edistää kestävää kehitystä osana Helsingin kaupunkikuvaa.
Tämä toimitila sopii erinomaisesti yritykselle, joka arvostaa keskeistä sijaintia, hyviä yhteyksiä ja kehittyvää ympäristöä.
Ota yhteyttä
Kiinnostuitko? Ota yhteyttä ja tule tutustumaan tiloihin!
Toimitilavälityspalvelumme on toimitilaa etsivälle täysin maksuton.
Vapautuu
Kysy
Kerros
1
Ota yhteyttä
Logistila Oy
Kylätie 11-13, 00320 HELSINKI
Karoliina Turppo
Näytä puhelinnumero
050 345 3258
Pyydä lisätietoa
