Vuokrataan toimistotilat - Vantaa
Rälssitie 7b, Veromies, 01510 Vantaa #10864379
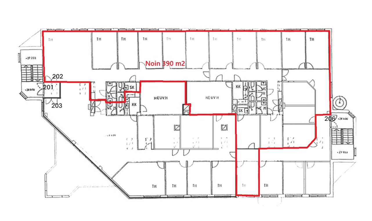
Vuokrattavana 2. kerroksen siistiä toimistotilaa.
-Oma auto
Näkyvällä paikalla
Jaettavissa
REALIUM OY LKV
Tammasaarenkatu 1, 00180 Helsinki
Vaihde:
Näytä puhelinnumero
+358 (0) 10 3263 466
p.
Näytä puhelinnumero
044 050 1158
joel.keto@realium.fi
p.
Näytä puhelinnumero
045 317 0330
KAIKKI TILAVAIHTOEHDOT REALIUMILTA!
Yksi välittäjä riittää! Soita tai lähetä sähköposti!
Ilmainen palvelu tilanhakijoille.
Kartoitamme ja tarjoamme parhaat tilavaihtoehdot.
Realium toimitilat on pääkaupunkiseudulla toimiva toimitilojen asiantuntijayritys. Tavoitteenamme on löytää yrityksellesi uudet toimitilat, jotka soveltuvat teidän tarpeisiin parhaiten. Autamme yrityksiä löytämään parhaat toimisto-, liike-, tuotanto-, varasto- ja logistiikkatilat nopeasti, tehokkaasti ja helposti. Realium tuntee pääkaupunkiseudun vapaiden toimitilojen tarjonnan kattavasti.
http://www.realium.fi