Vuokrataan toimistotilat - Helsinki
Kaisaniemenkatu 1, Keskusta, 00100 Helsinki #10864307
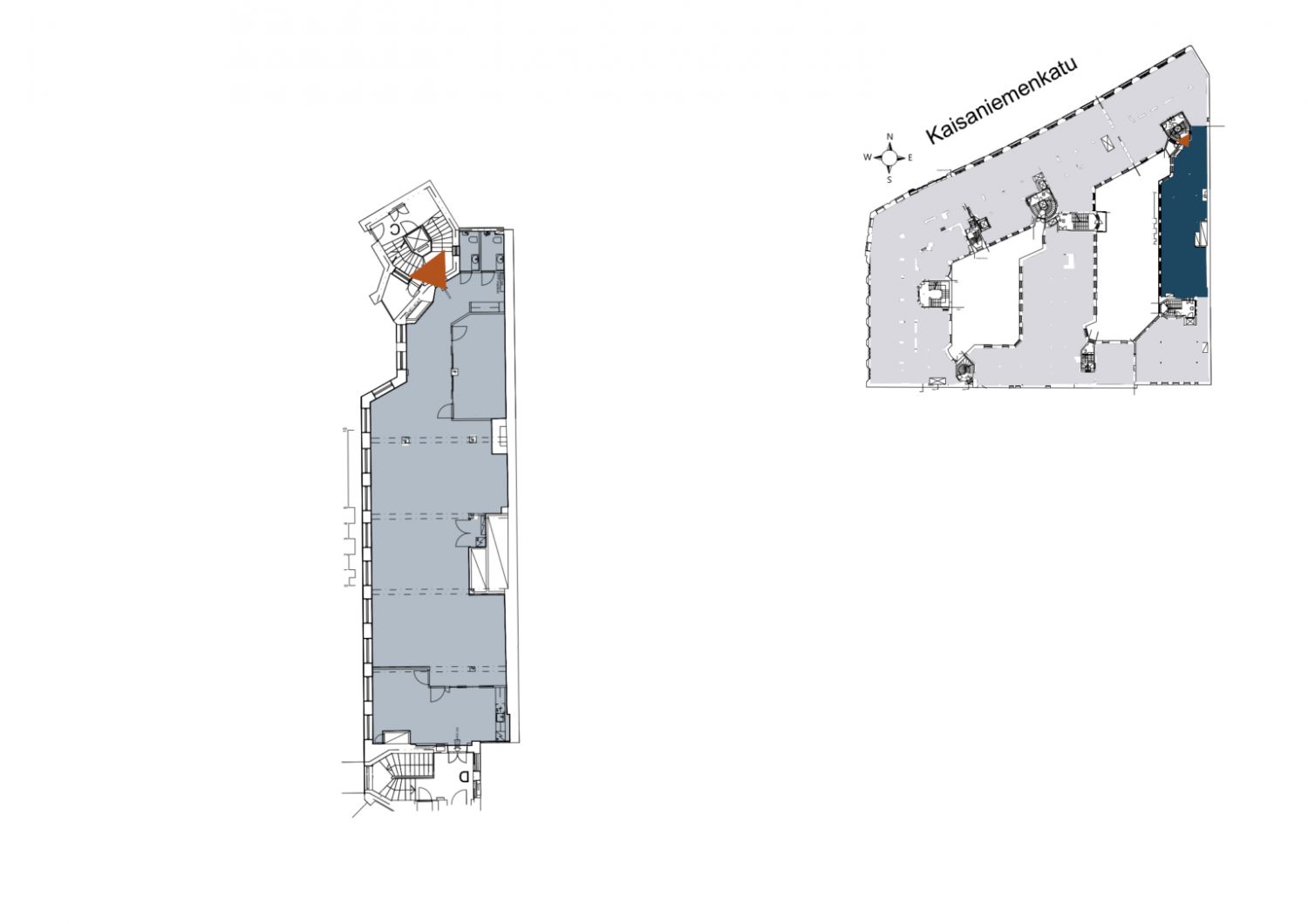
Mikonkatu 13 - Toimisto 237 m²
Osoite
Kaisaniemenkatu 1, 00100 Helsinki
Tilatyyppi
Toimistotilaa
237 m2
Pohjapiirros
Kiinteistö
Tehokas ja siisti toimistotila sijaitsee rauhallisella sisäpihalla neljännessä kerroksessa ja tarjoaa miellyttävän työympäristön ilman katutason häiriöitä. 237 neliömetrin kokonaisuus on toimivasti jäsennelty ja soveltuu erinomaisesti noin 10–15 hengen työyhteisölle. Tila on helposti kalustettavissa ja tukee sujuvaa arkea niin keskittymistä vaativaan työhön kuin tiimityöskentelyyn. Rauhallinen sijainti yhdistettynä käytännölliseen pohjaratkaisuun tekee tästä toimistosta houkuttelevan vaihtoehdon yritykselle, joka arvostaa viihtyisyyttä, tehokkuutta ja toimivaa kokonaisuutta keskeisellä paikalla.
Mikonkatu 13 - Toimitilat Helsingin ytimessä
Etsitkö toimitilaa, joka yhdistää arvokkuuden, sijainnin ja joustavuuden? Mikonkatu 13 tarjoaa juuri sitä: Helsingin ydinkeskustassa, vain muutaman askeleen päässä Rautatieasemasta ja Ateneumin vieressä, keskellä kattavimpia palveluja.
Sijainti ja palvelut, jotka tekevät vaikutuksen
Rakennus on yksi Helsingin keskustan tunnetuimmista kiinteistöistä. Sen ympärillä on laaja palvelutarjonta ja erinomaiset liikenneyhteydet kaikkialle pääkaupunkiseudulle. Julkiset kulkuyhteydet, ravintolat, hotellit ja ostosmahdollisuudet ovat aivan käden ulottuvilla – täydellinen paikka yritykselle, joka arvostaa saavutettavuutta ja näkyvyyttä.
Tilat, jotka mukautuvat tarpeisiisi
Kiinteistössä on tehty julkisivun ja yleisten tilojen kunnostustöitä, joissa on kunnioitettu talon henkeä ja arkkitehtuuria. Tilat ovat moderneja ja muunneltavia, joten ne tukevat monenlaisia liiketoiminnan tarpeita.
Ota yhteyttä
Kiinnostuitko? Ota yhteyttä ja tule tutustumaan tiloihin!
Toimitilavälityspalvelumme on toimitilan hakijalle maksuton.
Mikonkatu 13 - Toimitilat Helsingin ytimessä
Etsitkö toimitilaa, joka yhdistää arvokkuuden, sijainnin ja joustavuuden? Mikonkatu 13 tarjoaa juuri sitä: Helsingin ydinkeskustassa, vain muutaman askeleen päässä Rautatieasemasta ja Ateneumin vieressä, keskellä kattavimpia palveluja.
Sijainti ja palvelut, jotka tekevät vaikutuksen
Rakennus on yksi Helsingin keskustan tunnetuimmista kiinteistöistä. Sen ympärillä on laaja palvelutarjonta ja erinomaiset liikenneyhteydet kaikkialle pääkaupunkiseudulle. Julkiset kulkuyhteydet, ravintolat, hotellit ja ostosmahdollisuudet ovat aivan käden ulottuvilla – täydellinen paikka yritykselle, joka arvostaa saavutettavuutta ja näkyvyyttä.
Tilat, jotka mukautuvat tarpeisiisi
Kiinteistössä on tehty julkisivun ja yleisten tilojen kunnostustöitä, joissa on kunnioitettu talon henkeä ja arkkitehtuuria. Tilat ovat moderneja ja muunneltavia, joten ne tukevat monenlaisia liiketoiminnan tarpeita.
Ota yhteyttä
Kiinnostuitko? Ota yhteyttä ja tule tutustumaan tiloihin!
Toimitilavälityspalvelumme on toimitilan hakijalle maksuton.
Vapautuu
Kysy
Kerros
4
Ota yhteyttä
Logistila Oy
Kylätie 11-13, 00320 HELSINKI
Karoliina Turppo
Näytä puhelinnumero
050 345 3258
Pyydä lisätietoa
