Vuokrataan liiketilat - Espoo
Länsituuli 1, Tapiola, 02100 Espoo #10864304
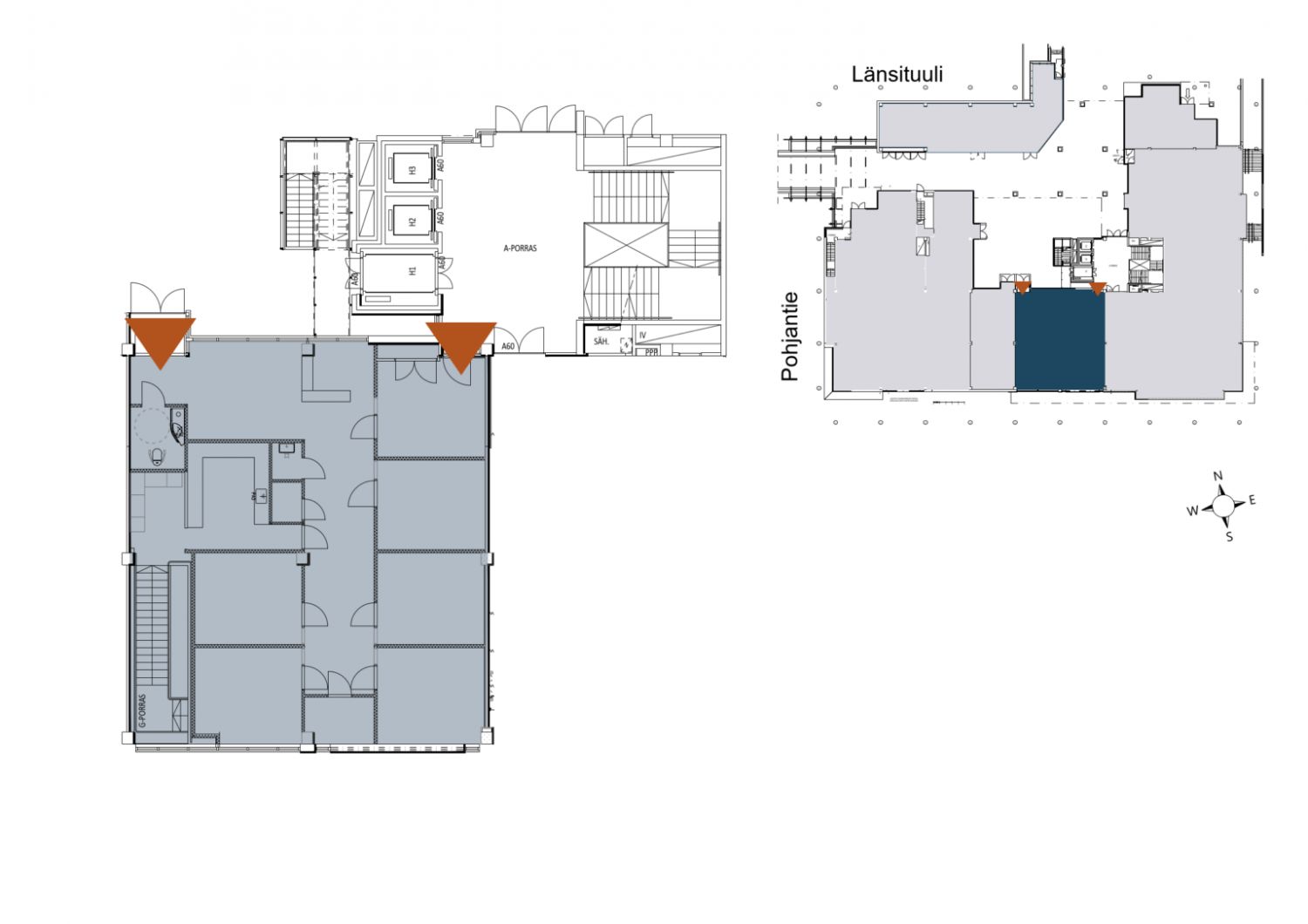
Länsikulma - Liiketila 233 m²
Osoite
Länsituuli 1, 02100 Espoo
Tilatyyppi
Liiketilaa
233 m2
Pohjapiirros
Kiinteistö
Vuokrattavana katutason liiketila erinomaisella sijainnilla. 233 neliömetrin kokonaisuus sijaitsee ensimmäisessä kerroksessa ja soveltuu monipuoliseen liiketoimintaan. Tila on aiemmin toiminut lääkäriasemana, joten pohjaratkaisu on toimiva ja helposti hyödynnettävissäerilaisiin käyttötarkoituksiin. Vuokrasopimus tehdään toistaiseksi voimassa olevana, ja tila on vuokrattavissa ainakin maaliskuun 2027 loppuun saakka, mikä tekee siitä joustavan ratkaisun myös määräaikaisiin tarpeisiin.
Lisäksi on mahdollista ottaa käyttöön alakerran noin 71 neliömetrin sosiaalitilat, joista on suora kulku lastauslaiturille.
Terveys- ja hyvinvointipalveluiden keskittymä Tapiolassa
Länsikulma on Espoon Tapiolassa sijaitseva terveys- ja hyvinvointipalveluiden ”hyvän tuulen” talo. Länsikulma sijaitsee Tapiolan keskuksen ytimessä. Kiinteistössä toimivat muun muassa kuntosali ja hammaslääkäriasema, ja vuokrattavissa on saunatilaa. Kellarissa on tarjolla vuokrattavia pienvarastotiloja.
Erinomaiset liikenneyhteydet
Länsikulmaan on erinomaiset julkiset liikenneyhteydet; lähin bussipysäkki on 100 metrin päässä ja metroasemalle on 300 metrin kävelymatka. Lentokentälle hurauttaa autolla alle puolessa tunnissa ja Helsingin keskustaan reilussa kymmenessä minuutissa. Lisäksi kiinteistö on erinomaisen pyörätieverkoston varrella, tuletpa mistä suunnasta tahansa.
Lähellä kaikki palvelut
Lähistöllä kauppakeskus AINOAn monipuoliset palvelut ovat helposti saavutettavissa sujuvoittamaan arkea.
Ota yhteyttä
Kiinnostuitko? Ota yhteyttä ja tule tutustumaan tiloihin!
Toimitilavälityspalvelumme on tilanhakijalle maksuton.
Lisäksi on mahdollista ottaa käyttöön alakerran noin 71 neliömetrin sosiaalitilat, joista on suora kulku lastauslaiturille.
Terveys- ja hyvinvointipalveluiden keskittymä Tapiolassa
Länsikulma on Espoon Tapiolassa sijaitseva terveys- ja hyvinvointipalveluiden ”hyvän tuulen” talo. Länsikulma sijaitsee Tapiolan keskuksen ytimessä. Kiinteistössä toimivat muun muassa kuntosali ja hammaslääkäriasema, ja vuokrattavissa on saunatilaa. Kellarissa on tarjolla vuokrattavia pienvarastotiloja.
Erinomaiset liikenneyhteydet
Länsikulmaan on erinomaiset julkiset liikenneyhteydet; lähin bussipysäkki on 100 metrin päässä ja metroasemalle on 300 metrin kävelymatka. Lentokentälle hurauttaa autolla alle puolessa tunnissa ja Helsingin keskustaan reilussa kymmenessä minuutissa. Lisäksi kiinteistö on erinomaisen pyörätieverkoston varrella, tuletpa mistä suunnasta tahansa.
Lähellä kaikki palvelut
Lähistöllä kauppakeskus AINOAn monipuoliset palvelut ovat helposti saavutettavissa sujuvoittamaan arkea.
Ota yhteyttä
Kiinnostuitko? Ota yhteyttä ja tule tutustumaan tiloihin!
Toimitilavälityspalvelumme on tilanhakijalle maksuton.
Vapautuu
Kysy
Kerros
1
Ota yhteyttä
Logistila Oy
Kylätie 11-13, 00320 HELSINKI
Karoliina Turppo
Näytä puhelinnumero
050 345 3258
Pyydä lisätietoa
