Vuokrataan liiketilat - Oulu
Kauppurienkatu 11, Keskusta, 90100 Oulu #10864294
Osoite
Kauppurienkatu 11, 90100 Oulu
Tilatyyppi
Liiketilaa
113 m2
Vuokra
2000,00 €/kk
Vuokraan sisältyy lämpö
Muuta
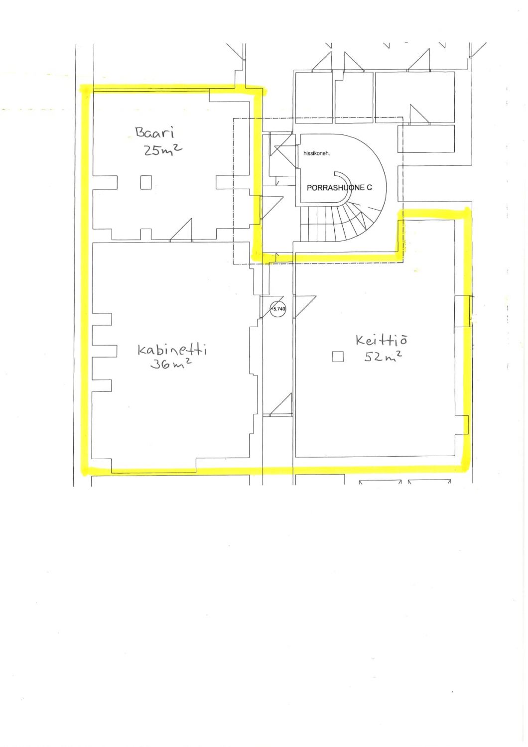
Nyt tarjolla vuokrattavaksi todella tasokas tilausravintola aivan Oulun keskustassa, tilat sisältää tyylikkään ruokailuravintolatilan kaikkine toimintatarpeineen sekä laadukkaan valmistuskeittiön hiiligrilleineen ja erillisen, täysin varustellun tyylikkään baaritilan!
Keittiöstä löytyy tasokkaat täysin varustellut keittiövarusteet, erikoisuutena mm aito puuhiiligrilli. Baari ja kabinetti on tyylikäs kokonaisuus jossa myös täydellinen varustus laadukkaita tilausruokailu tapahtumia varten. Tilojen ilmanvaihto on koneellisesti hoidettu ja viilennyksen hoitaa erilliset tehokkaat ilmalämpöpumput.
Asiakaspaikkoja on n. 50kpl.
Liiketilaan on käynti Kauppurienkadun puolella sijaitsevasta ovesta josta siirrytään talon kellarikerroksessa sijaitseviin tiloihin portaita pitkin.
Lisätiedot 045 2566 059 tai jarmo.kehusmaa@kiinteistotahkola.fi.
Eikö tämä ole sopiva? Kysy muita vaihtoehtojamme!
Keittiöstä löytyy tasokkaat täysin varustellut keittiövarusteet, erikoisuutena mm aito puuhiiligrilli. Baari ja kabinetti on tyylikäs kokonaisuus jossa myös täydellinen varustus laadukkaita tilausruokailu tapahtumia varten. Tilojen ilmanvaihto on koneellisesti hoidettu ja viilennyksen hoitaa erilliset tehokkaat ilmalämpöpumput.
Asiakaspaikkoja on n. 50kpl.
Liiketilaan on käynti Kauppurienkadun puolella sijaitsevasta ovesta josta siirrytään talon kellarikerroksessa sijaitseviin tiloihin portaita pitkin.
Lisätiedot 045 2566 059 tai jarmo.kehusmaa@kiinteistotahkola.fi.
Eikö tämä ole sopiva? Kysy muita vaihtoehtojamme!
Vapautuu
Heti vapaa
Rakennusvuosi
1932
Ota yhteyttä
Kiinteistö-Tahkola Oy
Lumijoentie 1, 90400 Oulu
Näytä puhelinnumero
0207 480 250
Jarmo Kehusmaa
Näytä puhelinnumero
0452566059
Pyydä lisätietoa
