Vuokrataan toimistotilat - Helsinki
Sahaajankatu 24, 00880 Helsinki #10864292
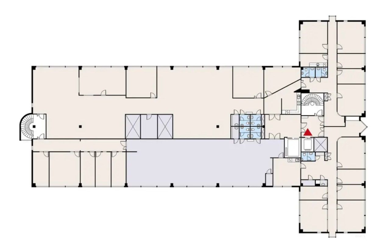
Vuokrattavissa muuntojoustava koko 3. kerroksen kattava 1067 m² toimitilakokonaisuus Herttoniemen teollisuusalueella. Tilassa eri kokoisia huoneita, runsaasti avonaista työtilaa, keittiö ja useampi wc. Osaa tilasta voidaan käyttää myös tuotanto- ja varastotilana. Voidaan jakaa myös pienempiin osiin.
Helsingin Sahaajankatu 24 tilat soveltuvat erityisesti teollisuusalan toimijoille, joilla on tarvetta toimisto-, logistiikka- ja tuotantotiloille. Tilat ovat muokattavissa vuokralaisen tarpeen mukaan. Kiinteistöstä löytyy myös tilava tavarahissi.
Osoite
Sahaajankatu 24, 00880 Helsinki
Tilatyyppi
Toimistotilaa
1067 m2
Kulkuyhteydet
Kiinteistö sijaitsee Herttoniemessä. Kiinteistön pihalla pysäköintipaikkoja. Bussilla 79 yhteys Herttoniemen sekä Siilitien metroasemille.
Vapautuu
Kysy
Rakennusvuosi
1991
Ota yhteyttä
Pyydä lisätietoa
