Myydään toimistotilat, liiketilat, tuotantotilat, varastotilat, autotalli/-hallitilat - Oulu
Gneissitie 19, 90620 Oulu #10864240
Myydään halutulta alueelta siistissä kunnossa oleva hallitila ja siihen liittyvä toimistotila.
Kohde on helposti saatavilla useista suunnista. Keskustasta ajoaika n.5min, samoin Kuusamontieltä.
Myydään kiinteistöosakeyhtiön osakkeet 1 - 739.
Osoite
Gneissitie 19, 90620 Oulu
Tilatyyppi
Toimistotilaa
55 m2
Liiketilaa
252 m2
Tuotantotilaa
252 m2
Varastotilaa
63 m2
Autotalli/-hallitilaa
252 m2
Yhteensä
370 m2
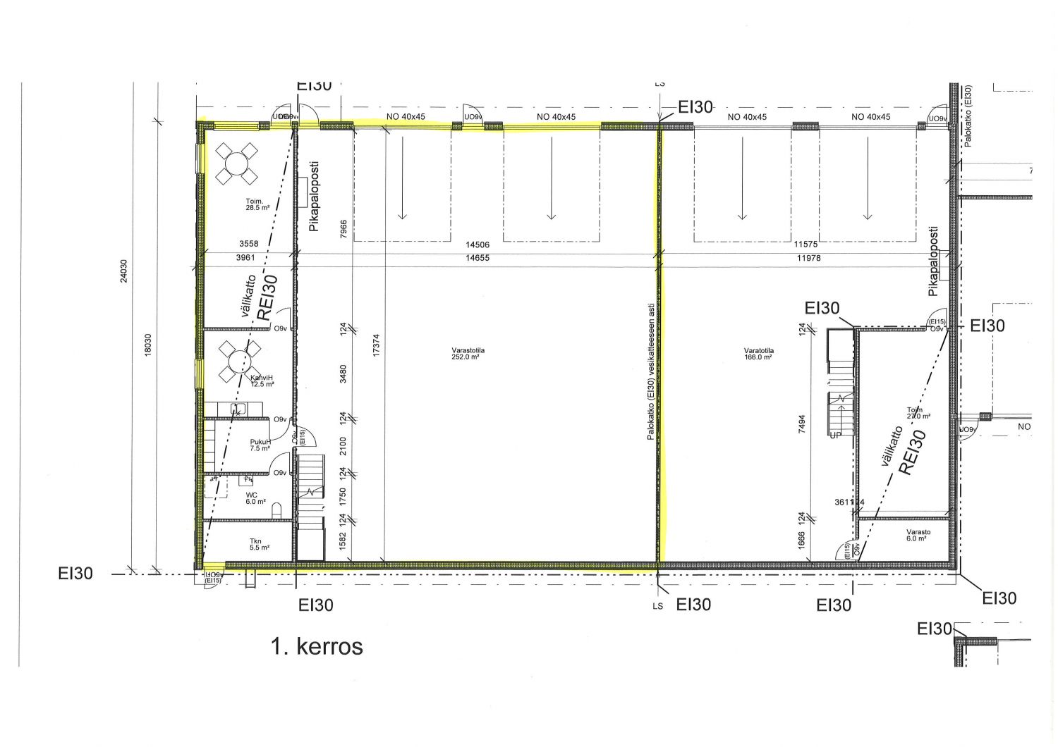
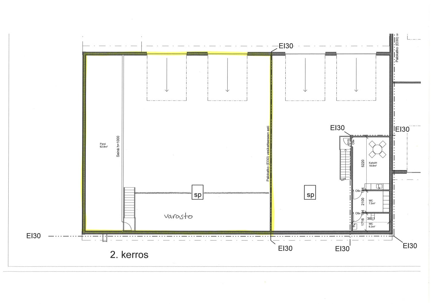
Pohjapiirros
Myyntihinta
Velattomana 349.000€. Hoitovastike 1238€/kk.
Kiinteistö
Oulun kaupungin vuokratontti, vuokra-aika 31.12.2051 saakka
Palvelut
Ruskon
Muuta
Hallitilan vapaa korkeus on 5,1m. Nosto-ovet 4000x4500.
Hallitilan päädyssä 2.kerroksessa lisätilaa varastointiin n.48m²
Hallitilan päädyssä 2.kerroksessa lisätilaa varastointiin n.48m²
Vapautuu
neuvoteltavissa
Rakennusvuosi
2016
Kerros
1 / 2
Ota yhteyttä
Pohjois-Suomen Toimitilat Oy
Harjapäänkatu 33, 90400 Oulu
Pekka Valkola
Näytä puhelinnumero
044 311 0555
Pyydä lisätietoa
