Vuokrataan toimistotilat - Tampere
Naulakatu 3, 33100 Tampere #10864090
Toimistotilaa keskustan tuntumassa
Osoite
Naulakatu 3, 33100 Tampere
Tilatyyppi
Toimistotilaa
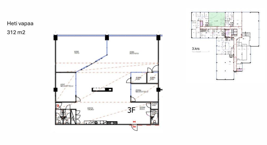
312 m2
Pysäköinti
Kyllä
Muuta
Vuokrattavana toimistotila Tampereen keskustan tuntumassa Naulakadulla. Tila sijaitsee Tahoma Oy:n omistamassa kiinteistössä, jossa on tarjolla muuntojoustavia ja nykyaikaisia toimitiloja. Vuokrattavana oleva toimistotila on kooltaan 312 m² ja se muokataan vuokralaisen toiveiden mukaisesti. Tila on varustettu jäähdytyksellä.
Kiinteistö sijaitsee lähellä Tampereen rautatieasemaa, Nokia Arenaa ja Tullin aluetta. Keskustan palvelut, joukkoliikenneyhteydet sekä pyöräilyreitit ovat helposti saavutettavissa. Kiinteistössä on lastauslaiturialue ja tavarahissi, mikä mahdollistaa myös tuotantotoimintaa tai varastointia tukevan ratkaisun.
Vuokralaisille on tarjolla pysäköintipaikkoja kiinteistön yhteydessä sekä lämpimässä pysäköintihallissa, jossa on sähkö- ja hybridiautojen latausmahdollisuus. Polkupyöräpaikkoja löytyy sekä ulkoa että lukitusta sisätilasta. Kiinteistössä on lounasravintola, kuntosali, kaksi saunaa sekä kahvila, joka on avoinna ympäri vuorokauden. Vastaanotto huolehtii vieraiden vastaanottamisesta ja vuokralaiset voivat käyttää veloituksetta varattavia kokoustiloja.
Tila on muokattavissa yrityksesi tarpeisiin ja kiinteistön ylläpidossa panostetaan jatkuvasti energiatehokkuuteen ja nykyaikaisiin teknisiin ratkaisuihin.
Tervetuloa tutustumaan, varaathan välittäjältä oman esittelyaikasi. Voit kysyä meiltä myös muita sopivia vaihtoehtoja, kauttamme löydät juuri Teidän tarpeisiinne sopivat tilat. Palvelumme on tilanhakijalle veloitukseton!
Kiinteistö sijaitsee lähellä Tampereen rautatieasemaa, Nokia Arenaa ja Tullin aluetta. Keskustan palvelut, joukkoliikenneyhteydet sekä pyöräilyreitit ovat helposti saavutettavissa. Kiinteistössä on lastauslaiturialue ja tavarahissi, mikä mahdollistaa myös tuotantotoimintaa tai varastointia tukevan ratkaisun.
Vuokralaisille on tarjolla pysäköintipaikkoja kiinteistön yhteydessä sekä lämpimässä pysäköintihallissa, jossa on sähkö- ja hybridiautojen latausmahdollisuus. Polkupyöräpaikkoja löytyy sekä ulkoa että lukitusta sisätilasta. Kiinteistössä on lounasravintola, kuntosali, kaksi saunaa sekä kahvila, joka on avoinna ympäri vuorokauden. Vastaanotto huolehtii vieraiden vastaanottamisesta ja vuokralaiset voivat käyttää veloituksetta varattavia kokoustiloja.
Tila on muokattavissa yrityksesi tarpeisiin ja kiinteistön ylläpidossa panostetaan jatkuvasti energiatehokkuuteen ja nykyaikaisiin teknisiin ratkaisuihin.
Tervetuloa tutustumaan, varaathan välittäjältä oman esittelyaikasi. Voit kysyä meiltä myös muita sopivia vaihtoehtoja, kauttamme löydät juuri Teidän tarpeisiinne sopivat tilat. Palvelumme on tilanhakijalle veloitukseton!
Vapautuu
Kysy
Rakennusvuosi
1983
Kerros
3
Ota yhteyttä
Tuloskiinteistöt Oy
Finlaysoninkatu 4, 33210 Tampere
Näytä puhelinnumero
050 502 4639
Sanna Eerilä-Vänni
Director, Partner
Näytä puhelinnumero
+358 50 5024639
Tara Särkinen
Commercial Real Estate Advisor
Näytä puhelinnumero
+358443187720
Pyydä lisätietoa
