Myydään tuotantotilat - Nurmijärvi
Otsotie 2, Karhunkorpi, 01900 Nurmijärvi #10864055
Monipuolinen ja moderni hallikokonaisuus erinomaisella sijainnilla Karhunkorvessa!
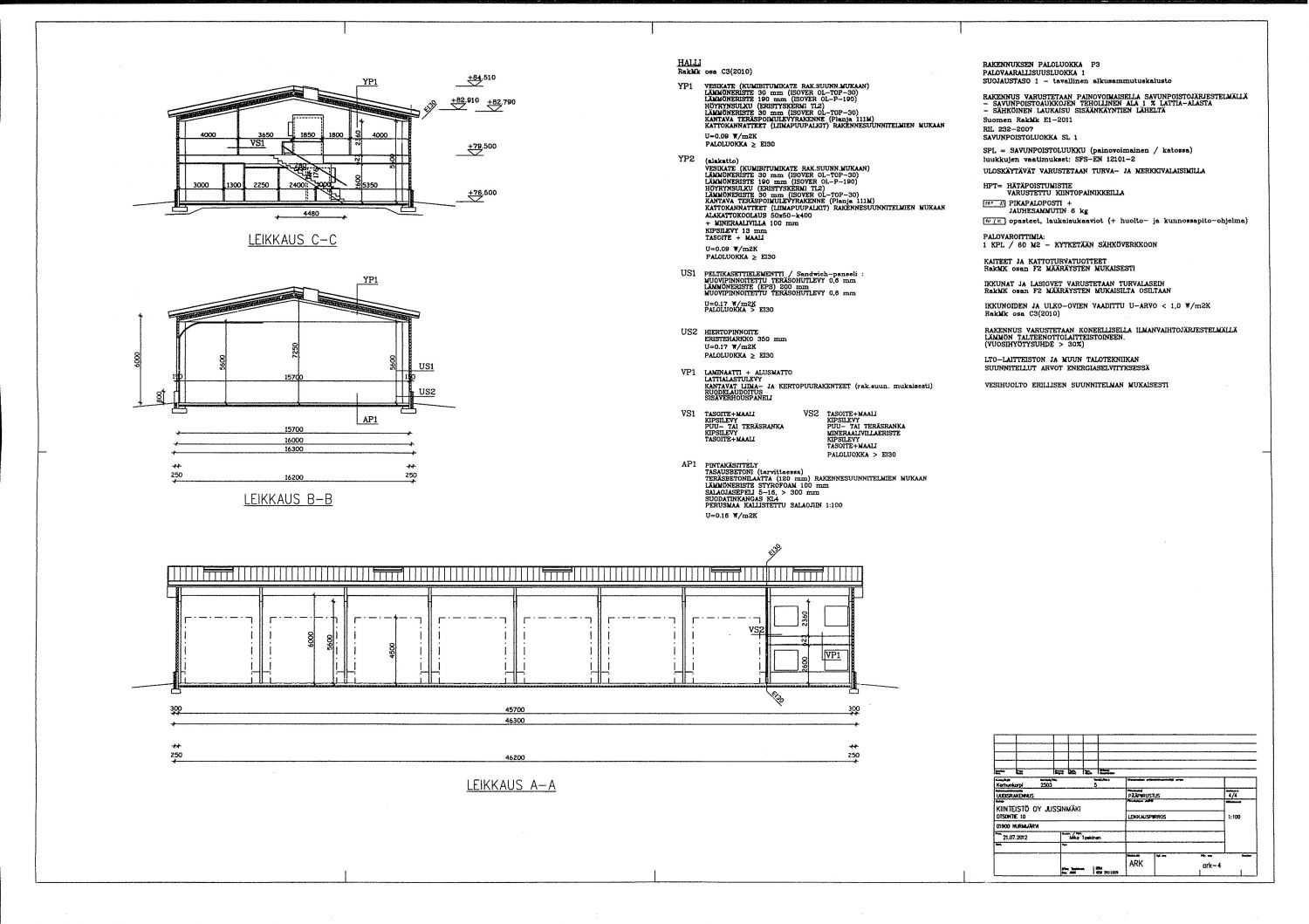
2013 valmistunut, hyvin pidetty teollisuus- ja varastorakennus tarjoaa toimivaa hallitilaa sekä laadukkaita toimisto-, sosiaali- ja saunatiloja hyvien liikenneyhteyksien ääreltä. Kokonaisuus on suunniteltu tehokkaaseen käyttöön ja soveltuu erinomaisesti logistiikan,varastoinnin tai yritystoiminnan keskukseksi.
Asfaltoitu ja osittain aidattu piha, useat sähköiset nosto‑ovet sekä nykyaikainen talotekniikka tukevat sujuvaa arkea. Kiinteistö myydään vuokrattuna, mikä tekee siitä kiinnostavan vaihtoehdon myös sijoittajalle. Selkeä ja toimiva kokonaisuus tarjoaa joustavuutta niin omaan käyttöön kuin pitkäjänteiseen omistamiseen.
Kiinteistömaailma Nurmijärvi Klaukkala | Saranen LKV Oy
Hannu Kalliokoski
Näytä puhelinnumero
+358404858948
