Vuokrataan toimistotilat - Helsinki
Vuorikatu 20, Kaisaniemi, Kluuvi, 00100 Helsinki #10864042
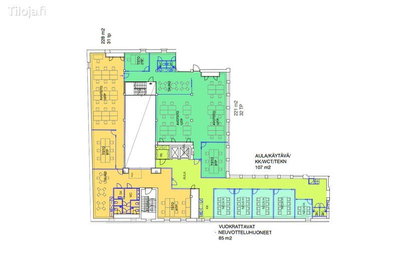
Moderni ja toimiva 228m2 kolmannen kerroksen toimistotila erinomaisella sijainnilla, jossa upea atrium piha
Ilmastoitu tila remontoidaan tulevan vuokralaisen tarpeiden mukaan.
Tilassa on oma keittiö sekä wc-tilat, jotka tukevat sujuvaa arkea ja työskentelymukavuutta.
Kiinteistö sijaitsee keskeisellä paikalla lähellä keskustan palveluita, ja saavutettavuus on erinomainen. Yliopiston metroasema sijaitsee aivan vieressä, mikä tekee liikkumisesta helppoa niin henkilöstölle kuin asiakkaille.
Tämä tila tarjoaa viihtyisän ja toimivan työympäristön yritykselle, joka arvostaa keskeistä sijaintia ja sujuvaa arkea.
Kiinteistössä on oma pysäköintihalli, jossa on 16 autopaikkaa. Talon edessä on maksullisia kadunvarsipysäköintipaikkoja ja EuroPark P-Kluuvi -pysäköintilaitoksen lähin sisäänkäynti on alle 2 min kävelymatkan päässä.
Vuokraan lisätään alv + kulut.
Ota yhteyttä ja kysy lisää!
Masa Hakala
masa.hakala@blanckiinteisto.com
+358 40 964 2482
www.blanctoimitilat.fi
