Vuokrataan toimistotilat, tuotantotilat - Oulu
Nuottasaarentie 5, 90400 Oulu #10864030
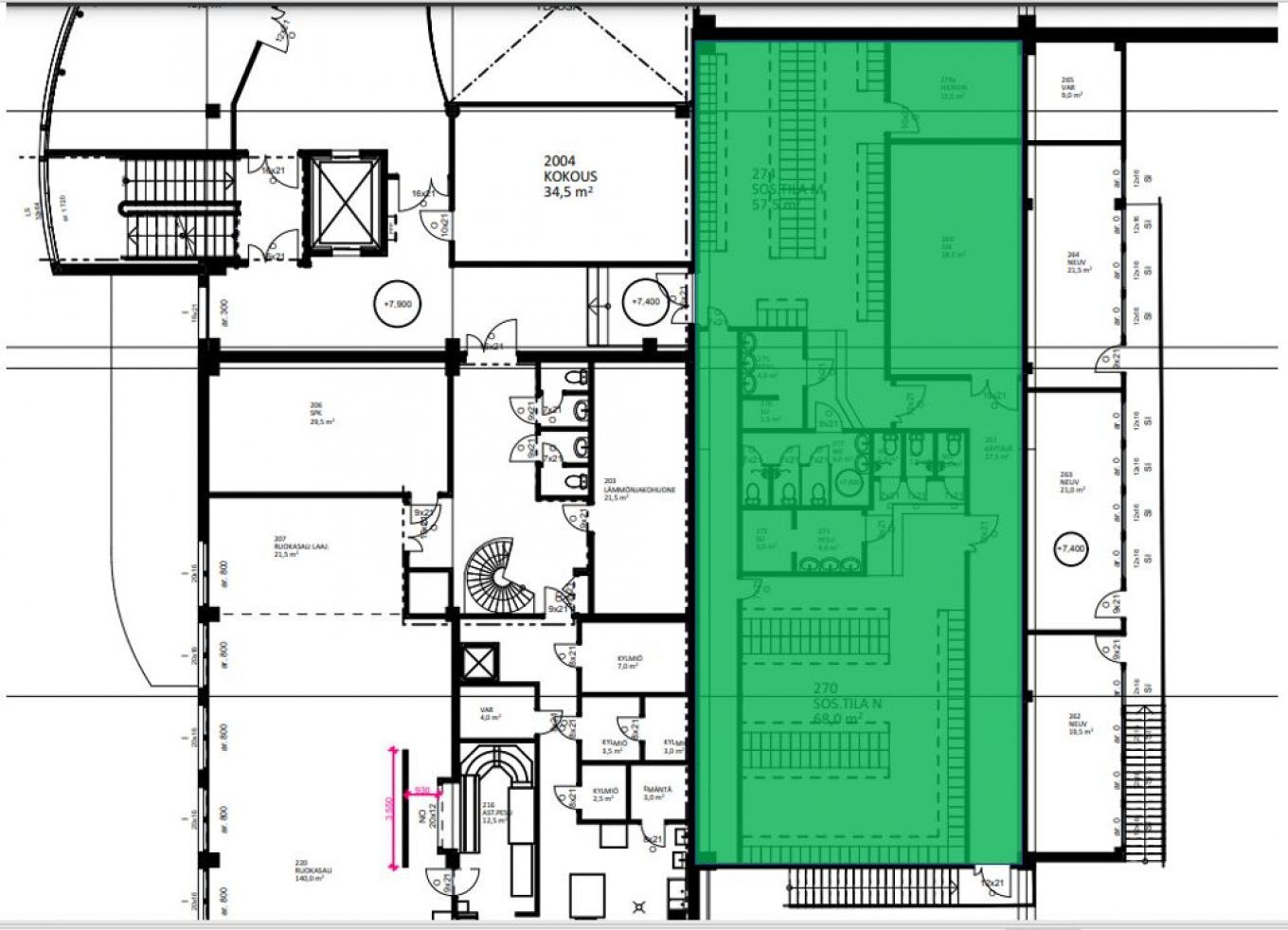
Vuokrattavana sosiaalitilat toisessa kerroksessa. Tila soveltuu esim. kevyeen tuotantoon tai toimistotilaksi. Tila voidaan mahdollisuuksien mukaan jakaa kahteen osaan.
Täällä teollisuus- ja liikerakentamiseen suunnatulla alueella Nuottasaarenkadulla, Oulussa, on vuokrattavissa tuotanto- ja toimistotilaa. Kiinteistölle on myönnetty Breeam-sertifikaatti vuonna 2022.
Limingantullin kaikki palvelut ovat kiinteistön välittömässä läheisyydessä. Maukasta lounasta tarjoillaan kiinteistön henkilöstöravintolassa, ja isot päivittäistavarakaupat ja monet liikuntapaikat ovat vieressä helpottamassa arjen sujuvuutta.
Kohteeseen on erittäin helppo saapua julkisilla tai omalla autolla. Bussipysäkille on 350 m matka. Oulun keskustaan ja rautatieasemalle matkaa on noin 3 km ja lentokenttäkin on vain 13 km päässä. Kiinteistön pihassa on erinomaiset asiakaspysäköintimahdollisuudet. Piha-alueella onnistuu helposti tavaran tuonti ja vienti. Vuoden 2024 aikana on tulossa myös sähköautojen latauspisteet.
Kohde on rakennettu aikanaan Nokialle, ja vuosien varrella tiloissa on toiminut mm. HalpaHalli.
Lisätietoja numerosta 020 7290 710. Lisää kohteita osoitteessa www.premises.fi.
Kohteella ei ole lain edellyttämää energiatodistusta.Kerros: 2
CRE PREMISES
Puh. Näytä puhelinnumero 020 7290 710
Vantaankoskentie 14
01670 VANTAA
