Vuokrataan toimistotilat, liiketilat - Oulu
Karhuojantie 2, 90460 Oulu #10864025
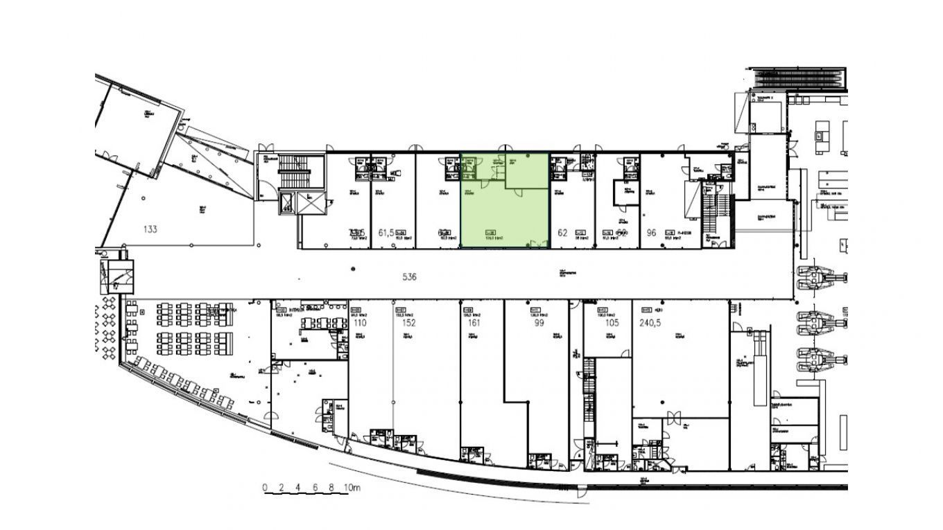
Vuokrataan siisti 124 m2 liiketila kiinteistön katutasossa Kauppakeskus Kapteenissa. Tila on mahdollista yhdistää kahteen viereiseen liiketilaan, mikä tarjoaa joustavat ratkaisut eri kokoisiin tarpeisiin. Tilassa on minikeittiö ja wc.
Kauppakeskus Kapteeni on alueen monipuolinen lähikeskus ja luonnollinen asiointipaikka niin paikallisille kuin ohikulkijoille. Keskuksen ankkurivuokralaisena toimii K-Supermarket Oulunsalo.
Kapteenista löytyy kattavat palvelut, kuten kuntosali, parturi- ja kampaamo, pankki- ja ravintopalveluita.
Lisäksi saman katon alta löytyvät Oulun kaupungin hammashoitola ja Oulunsalon kirjasto. Asiakkaille on käytettävissä erittäin hyvät ja vaivattomat pysäköintimahdollisuudet.
Lisätietoja numerosta 020 7290 710. Lisää kohteita osoitteessa www.premises.fi.
Kohteella ei ole lain edellyttämää energiatodistusta tai energialuokka ei tiedossa.Kerros: katutaso
Oulun keskusta noin 13 km.
CRE PREMISES
Puh. Näytä puhelinnumero 020 7290 710
Vantaankoskentie 14
01670 VANTAA
