Vuokrataan liiketilat - Espoo
Itätuulenkuja 10, Tapiola, 02100 Espoo #10863957
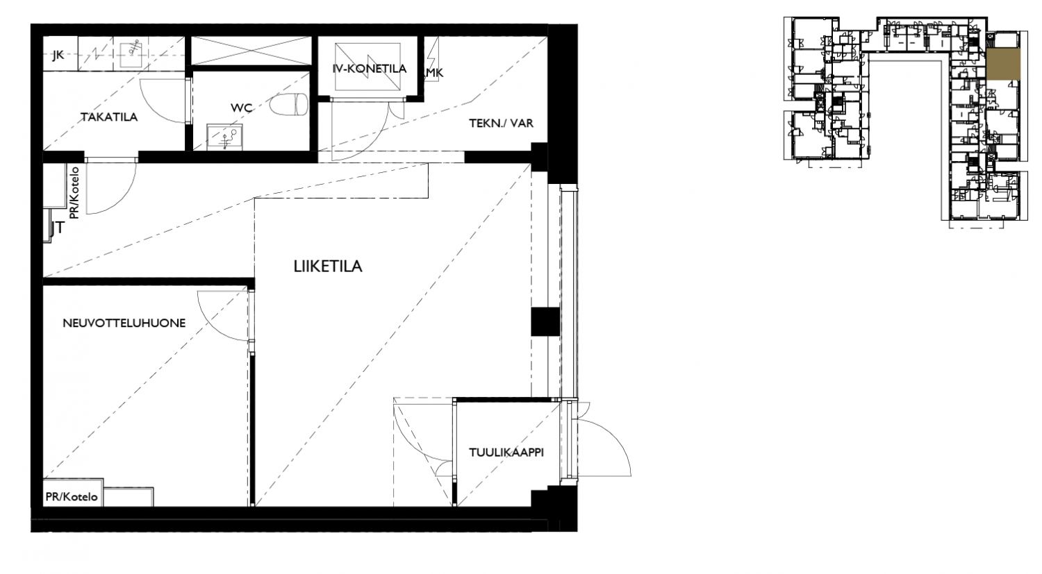
Vuokrattavana liiketila kiinteistön kivijalassa Tapiolassa.
Tapiolan Feenix on kahden tornitalon ja yhden matalamman rakennuksen muodostama kokonaisuus, joka sisältää asuntojen lisäksi liiketiloja. Sijainti Ainoa-kauppakeskuksen yhteydessä, metroaseman yläpuolella, on poikkeuksellisen vetovoimainen sekä asukkaille että liiketiloille, joihin se tuo luontevan ja vilkkaan asiakasvirran. Liiketiloja on suunnitteilla yhteensä noin 700 m2, joista ensimmäiset valmistuivat vuonna 2023.
Lisätietoja 020 7290 710. Lisää kohteita www.premises.fi
Kohteella ei ole lain edellyttämää energiatodistusta.Kerros: katutaso
CRE PREMISES
Puh. Näytä puhelinnumero 020 7290 710
Vantaankoskentie 14
01670 VANTAA
