Vuokrataan tuotantotilat, varastotilat - Orimattila
Kaitilantie 30, 16300 Orimattila #10863956
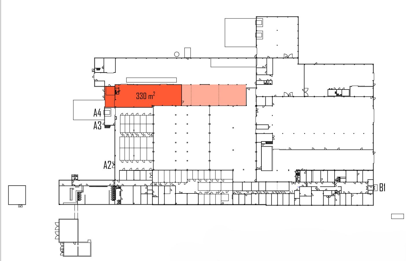
Vuokrattavana 330 m2 varastohalli, jonka vapaa korkeus on 7 metriä. Lastauslaiturin oven korkeus on 2,45 m. Tilaan on sisäänajomahdollisuus, ja oven edustalla sijaitsee yksi lattiakaivo. Halliin on mahdollista liittää lisätilaa joustavasti aina noin 500 m2 asti; laajennusalue on merkitty pohjakuvaan vaaleammalla sävyllä.
Kaitilan vaatetehtaana tunnettu kiinteistö on rakennettu useassa vaiheessa 1960- ja 1970-luvuilla. Teollisuuskiinteistön kokonaispinta-ala on 10 000 m2 ja siinä on sprinklerijärjestelmä. Piha-alue on asfaltoitu.
Lisätiedot 020 7290 710. Lisää kohteita www.premises.fi
Kohteella ei ole lain edellyttämää energiatodistusta tai energialuokka ei tiedossa.Kerros: katutaso
CRE PREMISES
Puh. Näytä puhelinnumero 020 7290 710
Vantaankoskentie 14
01670 VANTAA
