Vuokrataan liiketilat, varastotilat - Tampere
Hämeenpuisto 21, Keskusta, 33200 Tampere #10863900
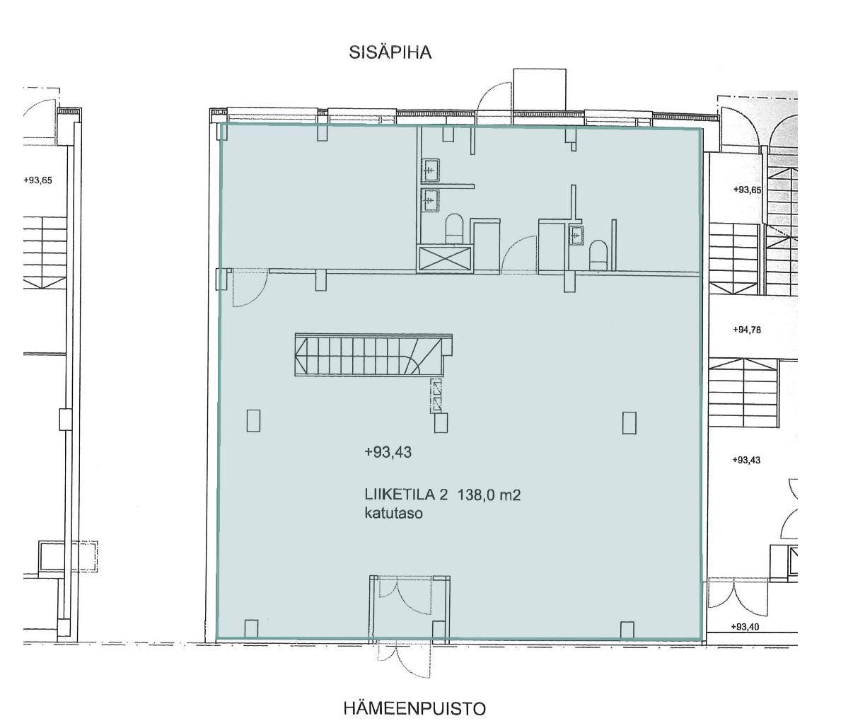
Liiketila Hämeenpuistossa
Osoite
Hämeenpuisto 21, 33200 Tampere
Tilatyyppi
Liiketilaa
138 m2
Varastotilaa
68 m2
Yhteensä
206 m2
Kiinteistö
Vuokrataan siistiä liiketilaa Hämeenpuistosta keskeiseltä sijannilta. Tila koostuu 138 m2 liiketilasta katutasossa sekä 68 m2 varastotilasta kellarissa.
Siistiä, remontoitua liiketilaa. Isot näyteikkunat, avointa selkeää tilaa.
Rakennus on saneerattu, joten remonttihuolia ei ole.
Hyvät julkiset yhteydet ja pysäköintipaikkoja Hämeenpuiston varrelta.
Siistiä, remontoitua liiketilaa. Isot näyteikkunat, avointa selkeää tilaa.
Rakennus on saneerattu, joten remonttihuolia ei ole.
Hyvät julkiset yhteydet ja pysäköintipaikkoja Hämeenpuiston varrelta.
Vapautuu
Kysy
Kerros
1. ja -1.
Ota yhteyttä
Logistila Oy
Kalevan puistotie 22 LT 4, 33500 Tampere
Jukka Nukari
Näytä puhelinnumero
0440759789
Pyydä lisätietoa
