Myydään tuotantotilat - Ylöjärvi
Verstastie 1, Elovainio, 33470 Ylöjärvi #10863839
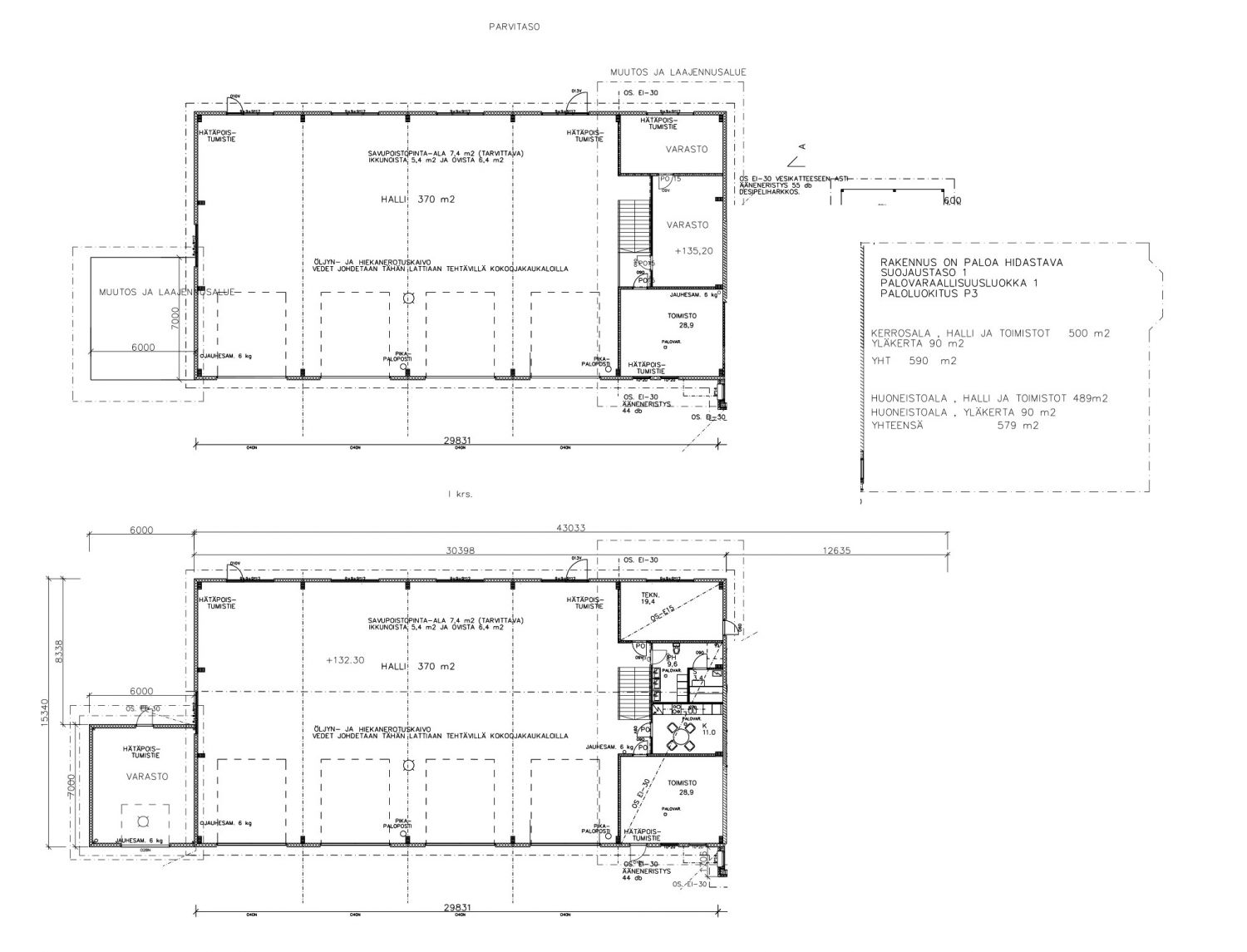
Erinomaisesti rakennettu hallikiinteistö Elovainiossa – huippusijainti ja poikkeuksellisen hyvät tilat
Ylöjärven Elovainiossa, arvostetulla ja kysytyllä alueella, tarjolla poikkeuksellisen laadukas hallitila. Kyseessä on mahdollisesti koko talousalueen parhaiten rakennettu halli – suunniteltu ja toteutettu erityisesti autohuollon tarpeisiin, nostureineen ja korkeine tiloineen. Rauhallinen sijainti metsän laidassa, aidattu ja asfaltoitu piha-alue tuo lisäturvaa ja toimivuutta.
Kokonaisuus tarjoaa monipuolista ja avaraa tilaa sekä erinomaiset sosiaalitilat: sauna, suihkut, keittiö, toimistohuoneet, asiakastilat ja varastotilat tekevät tilasta toimivan ja viihtyisän. Maalämpö takaa erittäin edulliset käyttökustannukset.
Lattia on tehty erittäin kestävästä laatasta, ja keskelle sijoitettu kaivo helpottaa tilan puhtaanapitoa. Suuret, ikkunalliset nosto-ovet mahdollistavat suoran ajon sisään ja valoisan toimintaympäristön koko vuoden ympäri.
Tämä on loistava tilaisuus yrittäjälle hankkia määräosa hallinnanjakosopimuksella – käytännöllinen ja joustava tapa omistaa huippukiinteistö.
Ota yhteyttä:
Juha P. Järvinen, 0400 739 055
Sovitaan esittely ja käydään katsomassa paikan päällä!
