Vuokrataan liiketilat - Helsinki
Annankatu 8, Punavuori, 00120 Helsinki #10863833
Kivijalkaliiketila paraatipaikalla Punavuoressa – 305 m² valoa ja näkyvyyttä
Osoite
Annankatu 8, 00120 Helsinki
Tilatyyppi
Liiketilaa
305 m2
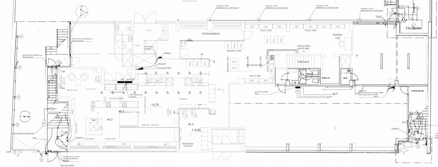
Pohjapiirros
Vuokra
6600 € / kk + alv
Kiinteistö
Erinomainen katutason liiketila arvostetulla sijainnilla Helsingin Punavuoressa osoitteessa Annankatu 8. Noin 305 m²:n kokonaisuus tarjoaa loistavan näkyvyyden vilkkaalle kadulle sekä monipuoliset mahdollisuudet erilaisille liiketoiminnoille.
Tila koostuu avarasta ja helposti muunneltavasta myymälä- tai asiakastilasta kadun puolella sekä toimivista taustatiloista, jotka soveltuvat esimerkiksi varastointiin, työtilaksi tai henkilökunnan käyttöön. Suuret ikkunapinnat tuovat runsaasti luonnonvaloa ja takaavat erinomaisen näkyvyyden kadulle. Tilassa on aiemmin toiminut Postin palvelupiste, ja pohjaratkaisu tukee sujuvaa asiakasvirtaa sekä selkeää tilajakoa.
Kohde soveltuu erinomaisesti esimerkiksi vähittäiskauppaan, showroomiksi, palveluliiketoimintaan tai asiakaspalvelupainotteiseen toimistokäyttöön.
Annankatu sijaitsee keskeisellä paikalla Punavuoressa, aivan Helsingin ydinkeskustan tuntumassa. Alueella on runsaasti ravintoloita, kivijalkaliikkeitä ja palveluita, mikä luo jatkuvaa asiakasvirtaa. Julkiset liikenneyhteydet ovat erinomaiset, ja kohteeseen on helppo saapua niin raitiovaunulla, bussilla kuin kävellen.
Tila on vapautumassa sopimuksen mukaan. Lisätiedot ja esittelyt saatavilla pyynnöstä.
Tila ei sovellu ravintola-, baari- tai kahvilakäyttöön.
This premises is not suitable for use as a restaurant, bar or café.
Tila koostuu avarasta ja helposti muunneltavasta myymälä- tai asiakastilasta kadun puolella sekä toimivista taustatiloista, jotka soveltuvat esimerkiksi varastointiin, työtilaksi tai henkilökunnan käyttöön. Suuret ikkunapinnat tuovat runsaasti luonnonvaloa ja takaavat erinomaisen näkyvyyden kadulle. Tilassa on aiemmin toiminut Postin palvelupiste, ja pohjaratkaisu tukee sujuvaa asiakasvirtaa sekä selkeää tilajakoa.
Kohde soveltuu erinomaisesti esimerkiksi vähittäiskauppaan, showroomiksi, palveluliiketoimintaan tai asiakaspalvelupainotteiseen toimistokäyttöön.
Annankatu sijaitsee keskeisellä paikalla Punavuoressa, aivan Helsingin ydinkeskustan tuntumassa. Alueella on runsaasti ravintoloita, kivijalkaliikkeitä ja palveluita, mikä luo jatkuvaa asiakasvirtaa. Julkiset liikenneyhteydet ovat erinomaiset, ja kohteeseen on helppo saapua niin raitiovaunulla, bussilla kuin kävellen.
Tila on vapautumassa sopimuksen mukaan. Lisätiedot ja esittelyt saatavilla pyynnöstä.
Tila ei sovellu ravintola-, baari- tai kahvilakäyttöön.
This premises is not suitable for use as a restaurant, bar or café.
Vapautuu
Heti
Rakennusvuosi
1962
Kerros
1
Energiatehokkuusluokka
Ei lain edellyttämää energiatodistusta
Katutasossa
Ota yhteyttä
ScanReal Oy LKV
Opus Business Park
Hitsaajankatu 24
00810 Helsinki
info@scanreal.fi
Puh:
Näytä puhelinnumero
020 730 8830
Sopivat toimitilat yhdellä otolla!
Kartoitamme toimitilatarpeesi ja etsimme yrityksellesi parhaiten sopivat vapaat toimitilat. Koska vuokranantajat maksavat palvelumme, on tämä yrityksellesi veloituksetonta.
Palvelumme on tilanhakijalle ilmainen
Pyydä lisätietoa
