Myydään varastotilat - Pori
Mikkolantie 10, 00640 Pori #10863827
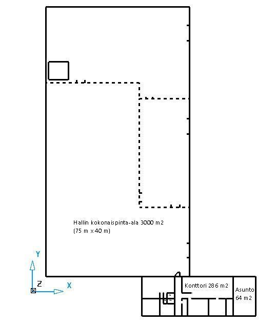
Myydään loistopaikalta Porista varasto-/teollisuushalli n. 3350 m2
Osoite
Mikkolantie 10, 00640 Pori
Tilatyyppi
Varastotilaa
3350 m2
Kiinteistö
Hyvällä paikalla sijaitseva varasto-/teollisuushalli 3000 m2 ja erillinen toimisto (johon sisältyy asunto 64 m2) noin 3500 m2. Halli jaettu nyt kolmeen osaan, mahdollista muuntaa yhdeksi isoksi tilaksi. Kaukolämpö, sprinkleri, oma sähkömuuntamo, 3 suurta nosto-ovea ja useita pylväsnostureita. Hallin korkeus keskellä 10 metriä, laidoilla noin 6 metriä. Tilassa lattiakaivot, ei kuitenkaan öljynerotuskaivoja. Suuri asfaltoitu piha-alue, kaupungin vuokratontti pitkällä sopimuksella. Edullinen hinta. Soita ja kysy lisää.
Sijainti
Sijaitsee hyvällä paikalla Helsingin-, ja Tampereentien liittymien vieressä. Samalla alueella mm. Prisma, Citymarket, Motonet, Biltelma, Tokmanni, Power, Jysk, Byggmax ja Jula.
Vapautuu
Heti
Näkyvällä paikalla
Ota yhteyttä
Comreal Oy LKV
Anna-Maija Hyppönen
Näytä puhelinnumero
050 534 8001
Läkkisepänkuja 6, 00620 Helsinki
Comreal on valtakunnallinen, asiantunteva ja aktiivinen kiinteistöalan kumppani, joka palvelee sekä kiinteistönomistajia että toimitilojen käyttäjiä. Toimintamme ydin on yksinkertainen: tarjota erinomaista palvelua kaikille.
Pyydä lisätietoa
