Vuokrataan toimistotilat - Lahti
Kauppakeskus Trio, Aleksanterinkatu 20, 15140 Lahti #10863825
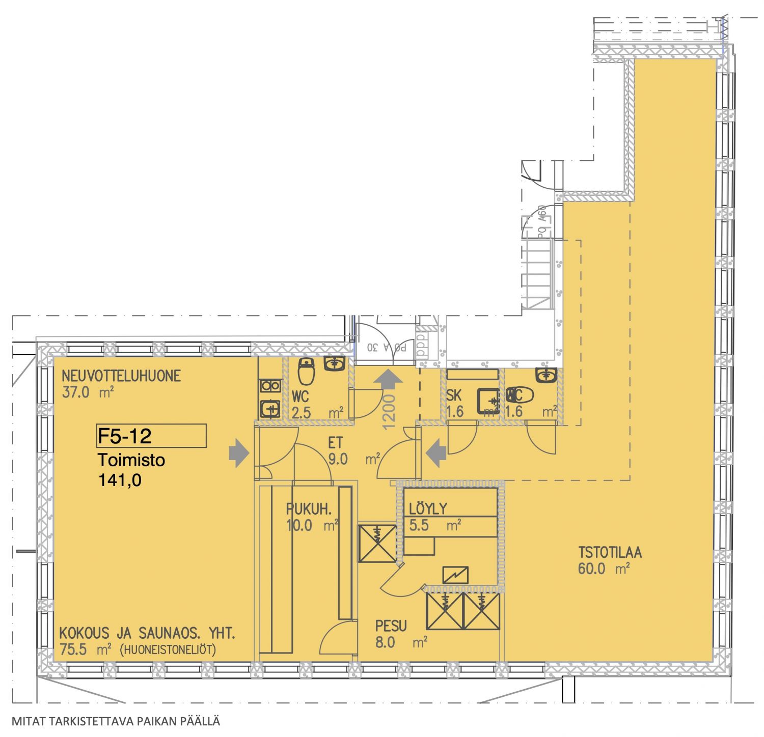
Valoisa 141 m² toimistotila Kauppakeskus Trion ylimmässä kerroksessa
Osoite
Aleksanterinkatu 20, 15140 Lahti
Tilatyyppi
Toimistotilaa
141 m2
Pohjapiirros
Kiinteistö
Valoisa ja rauhallinen 141 m² toimistotila Kauppakeskus Trion 5. kerroksessa. Tila sijaitsee rakennuksen ylimmässä kerroksessa ja tarjoaa miellyttävän työympäristön hyvällä luonnonvalolla. Ikkunat on uusittu ja tilan yleiskunto on perussiisti.
Toimistoon on oma sisäänkäynti kadulta erillisen rappukäytävän kautta, joten kulku ei tapahdu kauppakeskuksen sisätilojen kautta.
Nykyinen pohjaratkaisu on avokonttorimainen, mutta tilaa on mahdollista muokata käyttäjän tarpeiden mukaan. Tilassa oleva saunaosuus ei ole käytössä ja se voidaan tarvittaessa purkaa lisätilan saamiseksi.
Kokonaisuus tarjoaa hyvän mahdollisuuden toimijalle, joka arvostaa keskeistä sijaintia, omaa rauhaa sekä muunneltavaa toimistotilaa kehittyvässä ympäristössä.
Toimistoon on oma sisäänkäynti kadulta erillisen rappukäytävän kautta, joten kulku ei tapahdu kauppakeskuksen sisätilojen kautta.
Nykyinen pohjaratkaisu on avokonttorimainen, mutta tilaa on mahdollista muokata käyttäjän tarpeiden mukaan. Tilassa oleva saunaosuus ei ole käytössä ja se voidaan tarvittaessa purkaa lisätilan saamiseksi.
Kokonaisuus tarjoaa hyvän mahdollisuuden toimijalle, joka arvostaa keskeistä sijaintia, omaa rauhaa sekä muunneltavaa toimistotilaa kehittyvässä ympäristössä.
Vapautuu
Heti
Kerros
5 / 5
Energiatehokkuusluokka
Ei lain edellyttämää energiatodistusta
Näkyvällä paikalla
Hissi
Ota yhteyttä
ScanReal Oy LKV
Opus Business Park
Hitsaajankatu 24
00810 Helsinki
info@scanreal.fi
Puh:
Näytä puhelinnumero
020 730 8830
Sopivat toimitilat yhdellä otolla!
Kartoitamme toimitilatarpeesi ja etsimme yrityksellesi parhaiten sopivat vapaat toimitilat. Koska vuokranantajat maksavat palvelumme, on tämä yrityksellesi veloituksetonta.
Palvelumme on tilanhakijalle ilmainen
Pyydä lisätietoa
