Vuokrataan toimistotilat - Helsinki
Vanha talvitie 11, Hermanninmäki, Hermanni, 00580 Helsinki #10863799
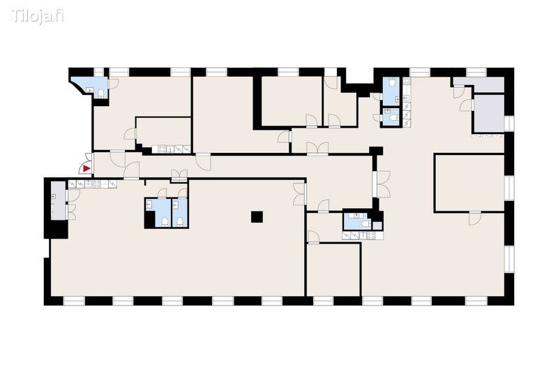
Tämä vaikuttava 496 m²:n toimistokokonaisuus sijaitsee kiinteistön vanhan osan kolmannessa kerroksessa ja tarjoaa erinomaiset puitteet keskisuuren yrityksen pääkonttoriksi tai merkittäväksi toimipisteeksi. Tilaratkaisu yhdistää tehokkaasti avaran työskentelytilan sekä erilliset neuvottelu- ja vetäytymishuoneet, mahdollistaen sujuvan ja monipuolisen työskentelyn.
Tila toteutetaan täysin käyttäjän tarpeiden mukaan, joten lopputuloksena on moderni, muuttovalmis ja yrityksesi näköinen työympäristö ilman kompromisseja. Kerrokseen on esteetön kulku hissillä.
Yli satavuotias entinen teollisuusrakennus hurmaa ainutlaatuisella tunnelmallaan, jossa rouhea historia kohtaa modernin viimeistelyn. Rakennuksessa on hiljattain toteutettu laaja peruskorjaus sekä energiaremontti, ja sille on myönnetty BREEAM Very Good -ympäristösertifikaatti, mikä takaa vastuullisen ja nykyaikaisen toimintaympäristön.
Sijainti Kalasatamassa tarjoaa erinomaiset kulkuyhteydet. Metroasema sijaitsee vain noin 400 metrin päässä ja bussiyhteydet ovat lähellä. Alueen palvelut ovat kattavat: Tukkutorin monipuoliset ravintolat ja Kauppakeskus Redin laaja palvelutarjonta ovat kävelyetäisyydellä. Pysäköinti on järjestetty kiinteistön sisäpihalla vuokrattavilla autopaikoilla.
Tämä tila tarjoaa ainutlaatuisen yhdistelmän tilaa, tunnelmaa ja sijaintia – täydellinen valinta yritykselle, joka haluaa kasvaa inspiroivassa ympäristössä. Ota yhteyttä ja tule tutustumaan tähän poikkeukselliseen kokonaisuuteen.
Vuokraan lisätään alv + kulut.
Ota yhteyttä ja kysy lisää!
www.blanctoimitilat.fi
Masa Hakala
masa.hakala@blanckiinteisto.com
+358 40 964 2482
