Vuokrataan liiketilat - Vantaa
Tammiston Kauppatie 27, 01510 Vantaa #10863697
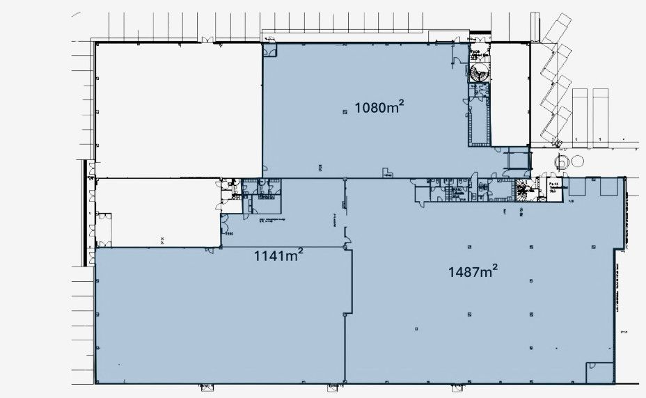
Vuokrattavana liiketilaa Vantaan Tammistossa. Tämä 1141 m2 liiketila sijaitsee kiinteistön 1. kerroksessa. Tila on toiminut aiemmin padel-hallina. Käyntiovi Tammiston Kauppatien puolelta. Jaettu lastauslaituri, voi yhdistää sekä 1080 m2 tilaan, että 1487 m2 tilaan.
Tammisto tunnetaan Suomen suurimpana kauppa-alueena, jossa lukuisat sisustuksen, muodin ja vapaa-ajan retail toimijoijat sijaitsevat. Tammiston pohjoispäädyssä on kauppakeskus Jumbo. Kohteeseen on erinomaiset yhteydet autolla ympäri pääkaupunkiseudun ja tämän lähialueilta. Lisäksi kohteeseen on hyvät bussiyhteydet.
Liiketilojen vuokraus ja tiedustelut: C&W Retail Services, puh. 010 836 8418, retail.fi@cushwake.com.
Tammiston Kauppatie 27 on vähittäiskauppakeskittymässä sijaitseva kiinteistö Vantaan Tammistossa. Varastotilat ovat modernit ja liiketoimintapotentiaali tässä kohteessa valtava. Vuonna 2004 valmistunut rakennus käsittää varasto-, tuotanto-, toimisto- ja myymälätilaa, jotka soveltuvat myös vaativaan käyttöön. Kohde sijaitsee Tuusulanväylän ja Kehä III:n risteyksessä lähellä lentokenttää.
Kiinteistön toisessa kerroksessa toimistotiloja. Ensimmäisessä kerroksessa korkeita varastotiloja, jotka ovat yhteydessä käsittely- ja sosiaalitiloihin. Ei hissiä. Kiinteistön pihalla runsaasti pysäköintitilaa.
