Vuokrataan toimistotilat - Jyväskylä
Vuokrataan idyllinen toimistotila keskustasta, Puistokatu 21, 40100 Jyväskylä #10863693
Vuokrattavana modernia ja siistiä toimistotilaa Puistokadun ensimmäisestä kerrostalosta, joka valmistui vuonna 1926. Tämä kiinteistö on osa kaupungin rikasta historiaa ja tarjoaa ainutlaatuisen yhdistelmän perinteistä arkkitehtuuria ja modernia toimistotilaa aivan Jyväskylän ydinkeskustan tuntumassa. Talo on säilyttänyt ainutlaatuisen historiallisen charmin, ja sen toimistotilat on päivitetty vastaamaan nykypäivän vaatimuksia. Tiloissa on mm. jäähdytys.
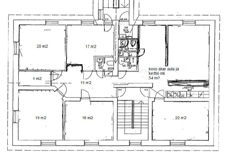
Tilat sijaitsevat talon kolmannessa kerroksessa ja tiloissa on 4 työhuonetta. Yhteen työhuoneeseen on mahdollista rakentaa keittiö ja taukotila. Tilassa on oma wc ja pieni varastohuone. Kellarissa yksi n. 10 m2 varastohuone. Mahdollisuus vuokrata kaksi autopaikkaa sisäpihalta, lisä autopaikoista mahdollisuus neuvotella. Kadun varressa kiekollisia pysäköintipaikkoja.
Lisätiedot ja näytöt: Henri Kumpulainen, Puh 040 864 3631, s-posti henri.kumpulainen@aveon.fi
Aveon Real Estate Oy
Kauppakatu 18 C 26, 40100 Jyväskylä
Henri Kumpulainen
Puh.
Näytä puhelinnumero
040 864 3631
henri.kumpulainen@aveon.fi
Olemme kiinteistöliiketoiminnan asiantuntija, joka toimii yrittäjämäisesti neuvonantajana kiinteistökaupoissa, toimitilavälittämisessä sekä kiinteistökehityksessä.
Asiakkaitamme ovat kotimaiset ja ulkomaiset kiinteistönomistajat, -sijoittajat sekä tilojen käyttäjät kaikkialla Suomessa.
